





车库步入室内,奶油白与复古橡木色进⾏⾊彩的铺陈,冷暖相宜,在光的引述下,形成“家”空间的温暖感知,另有一种空间的通透感。

左手边是木质玄关柜,木制格栅造型不会沉闷且可以挂衣物收纳,底下做换鞋凳方便业主需求。



在光影的作用下递进空间的纵深感,亦更具情感共鸣的建立,完成一个有情感的空间氛围,匹配业主想要的自由的生活模式。

观影区沙发背后墙体打通做圆柱加弧形的造型,让空间更有通透感;上方墙体打掉做玻璃,周围用木饰面包裹与空间相协调。


以空间为载体,通过线条、块面与色彩的组合,赋予空间最大的自由度与自我言说的可能性。

电视背景墙延续弧形的路线。
• SU立面设计图






简单的生活或许不会鲜衣怒马般热闹,却可以精致如电影一般。

一分欢跃,一分温静,纯净的素色,不争不抢,总有从容舒展舒朗淡泊的气质。

天井处的临井一隅,可留给向内的思索和丰盈充沛的内在。
独留一盏落地灯和壁炉的火焰将情绪拉满,待傍晚周边微微暗下,如话剧艺术场景一般,主角的独白留给自我。


负一夹层空间小,无功能区,使用率低。
2、打通右边和下面墙体做玻璃,增加采光与通风,视野更加开阔明亮。
娱·台球室


1、北面入户处动线过于繁琐;
2、厨房及餐厅空间较小,影响视觉空间及动线;
3、楼梯处过道拥挤且没有采光及通风。
2、厨房位置变动,厨房使用面积增大;
3、楼梯旁墙体打通,现浇楼板层扩入室内,钢琴位置做挑空,提高空间视觉感;
4、调整南边入户位置,扩大使用面积。
明·客餐厅


客厅空间的基调是自由与舒适,是娓娓道来的温和纯粹,光影与线条分割出开放而利落的空间。



亦在一帧一帧静态的影像中,寻找美与功能的平衡。居一室欢悦且有温度,不紧不慢回旋日常情感。
常规平淡的空间里抓取几个重点,楼梯上的跳色与长短不一的台阶,增添意趣的同时又起到视觉的平衡的作用。


空间强调简洁与放松,保持调性上的连贯感。

钢琴区做挑空,让一层与二层有互动与连贯性,楼梯上的跳色与长短不一的台阶呼应钢琴的黑白琴键。

两扇超大的窗户让光线洒将下来,游走在空间里,停留在钢琴上,停留在地面上,洒入客厅、餐厅之内,落下不可度量的力量,让光与影揉在空间中。

挑空处用椭圆形造型吊顶,增加这光的无限深意。

纳藏烟火气的餐厅,与西厨区结合,从日常生活角度展开空间叙事。
以浓厚的⿊绿强调其存在感,同时亦可“造影”,使空旷的空间富有灵动的魅⼒,通过序列组合,赋予空间更为丰富的情绪表达。

设计光进⼊的位置,设计结构的起势,复古橡木色与墨绿色花纹大理石相衬,使之能够体现空间的起承转合之美。

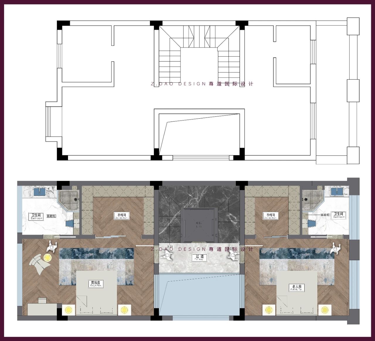
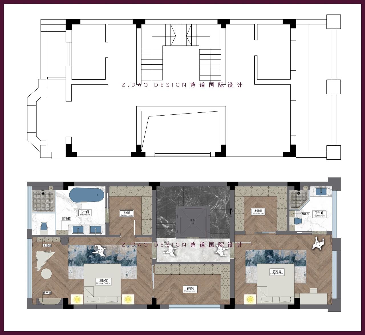
2、北卧室卫生间及衣帽间空间较小。
2、北卧室阳台并如室内使用,扩大空间;
3、挑空位置左右两边墙体从承重墙体位置做落地大窗户,增加采光扩大视野。

• 效果图



小男孩的世界也可以有着大男孩的思维,没有卡通的装饰,让整个空间多了些成熟感。

架子鼓的结合让空间氛围多了乐趣和一些摇滚范。
2、南北都有阳台占用空间较多。
2、把原卫生间面积扩大,卫生间做四分离;
3、楼梯对面现浇位置做衣帽间,增加收纳空间;
4、北阳台得空间扩建,并入室内,增大了使用面积及收纳空间。


主卧空间强调简洁与放松,保持调性上的连贯感。
背景墙以自然木色包裹,浸染山林形意,从容与光影共生。

面朝山海的落地窗格,是为自然光景定制的画框,在点点闪烁的光影浮沉与流动间,初春晚风、盛夏蝉鸣、秋时红叶、冬日白雪…所谓“四时之景不同,而乐亦无穷也”,大底就是这样罢。
斜顶拉高了空间感,右边以柱子为界限做地台,让空间更有层次感。


主卧卫生间划分功能区,做四分离干湿式,美观的同时具备使用功能,满足业主的需求。



将阳台纳入室内,增大卧室面积,素色主色调衍生出纯粹,点缀的木色使空间温润如斯。

暖色调的整体装修风格统一,暖黄的光线设置白墙之中投射出细碎的光影,温暖和煦,将卧室温馨舒适的氛围感受拉满。

衣帽间运用低饱和度的暖色,将美感与舒适度完美的融合在一起,带来最为舒适的空间氛围。

1、功能区较多且空间较小,空间分散;
2、北边是斜顶位置,使用面积降低。
2、斜顶区域做柜体收纳,最大化利用空间;
3、南边现浇处做洗衣房,增大晾晒面积;
4、室内与露台之间做玻璃移门,增大采光。

顶面用圆形顶与楼下相之呼应,倾注自然塑型明净场域。


木色地板加上棕色的沙发,从视觉享受至实用功能的构筑魅力,让业主把自己的喜好发挥的淋漓尽致。亦追求艺术与功能的通融蕴意。以纯粹造境“无色”深意,自在状态游走于随性与随心之间。

玻璃移门与露台更有通透性。
洁·阳光房


惬·露台





