榕城悠悠,三山雅韵犹存,仰观院落形制。空间布局采用传统中式对称设计,把东方文化理念和审美精神融入其中,以养云之气、酝酿一副极具东方气韵的澹雅画境。
运用材料:瓦拼肌理、青砖、玉石、木饰面、岩板、金属等。
国风回归,传承中式传统文化精髓;我懂你的信任,你懂我的用心,一起期待家的落成。
设计·改造

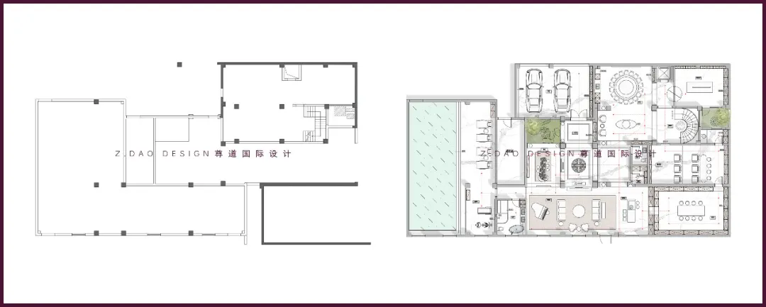
▲负二层原始户型图vs平面布局图
问题:通风采光较弱;
平面方案优化解析:
1、将原始地下室入户区域墙体全部打开,布置门厅,入户景观,茶室,休闲区,入户左侧整体规划设计成泳池;
2、入户右侧依据柱子位置从新规划餐厅,高尔夫球室,楼梯,影音室,右下方位置纳入室内规划为酒窖。
负二层入户

入户过厅区整体以胡桃木色墙板为主,原始承重柱上方胡桃木色墙板,下方采用中式“柱础”,顶面借鉴了书本展开的样子,并加入中式传统的“月梁”,这样整个顶面,不仅美观,而且精致。

门厅尽头是入户端景,端景的中间采用了玉石雕刻作为主背景四周用石材作为点缀,这样的设计下整个入户空间更加沉稳大气。
负二层茶室
茶室设计以雅致端庄为核心,色彩上以胡桃色系为主,中国人的茶空间,不仅限于品茶,更是一个静心、修心的空间,国风雅致,又呈现出古朴的韵味。
茶室背景设计整面墙的柜子这样功能颜值好,实用性也强。
茶室右侧采光景观围墙四周采用了传统中式元素“瓦当”,地面设计了水景,中心点缀了景观,这样整个茶室空间给人一种宁静的氛围感。
负二层餐厅
餐厅区域采用挑空的设计,整体没有太多复杂的色彩,餐桌背景采用了带有凹凸的石材四周利用线性灯点缀突出背景,背景周边采用实木雕花墙板,餐桌旁边设计出餐边柜,上方设计开放格,这样美观的同时又可以作为装饰。

餐厅靠近楼梯的一侧,设计了两面墙的开放格,这样既能用来储物也可以用来展示,和客厅采用一样的木质雕花墙板,整个空间颜色统一。
餐厅区域依据业主的需要,设计了钢琴的区域,钢琴区采用了实木雕花的木材作为背景,这样钢琴区既可以用来演奏,也可以起到观赏的作用。
楼梯下方空间也没有浪费,设计成景观,这样从进入餐厅开始做到了一步一景,而且整个餐厅以胡桃木色为主色调,整体给人的感觉温暖舒适。
负二层影音室

影音室的设计根据空间实际情况,后排砌台阶,后排放置吧台,墙面定制酒柜。

顶面采用当下流行的星空顶,这样前后观影互不干扰,影音+娱乐的双重享受。
负二层休闲区

休闲区中央的红木家具和中式的山水画屏风相得益彰,客厅两端设计了开放格既能储物又能展示收藏品,提供一个既充满古韵又不失现代感的聚会空间。
使用双轴对称架构被应用在客厅区域的点滴之中,居中的沙发布局,让空间双开公正,全墙的展示区域,全墙的落地观景,让视野无拘无束。
为了方便休闲聚会设计了水吧台,中式定制柜体,加上石材台面,整体给人一种大气沉稳的感觉,后面设计了开放格柜体,可以用来储物或者放置艺术品用来展示。
负二层车库

极具未来感的空间,一秒将人进入“速度与激情”的心境中。木色与光影的对话,光影婆娑为冷峻的工业化空间中带来更开放,生态,包容的社交氛围。整个空间的硬装回归质朴,选用了大理石、不锈钢、原木这几种基本的材料,创造更具未来感和包容感的新工业风格体验。

无主灯设计+星空顶,营造满目繁星的无边际视野;大面积金属洞洞板可以挂球拍,自行车,冲浪板等。
车库配备充电桩,满墙收纳柜,包包鞋子展示柜,满足入户基本收纳。墙面金属板,搭配条线灯带,营造科技感。
负二层泳池

在地下室的一角打造了86平的泳池,吊顶采用金属板内嵌线条灯,与墙面色调相呼应。
泳池一侧打造室内健身区和躺椅,营造轻松休闲的空间氛围,游累了还可以坐在这里休息聊天~

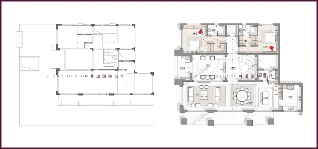
▲一层原始户型图vs平面布局图
问题:客厅实际实用面积小,宽度过窄,空间零碎,不规整;
优点:承重墙体少,可素造型强,拥有一个大横厅,入户拥有大挑空门厅。
2、重新规划了2个卧室的空间。
一层入户
在一楼正入户的入口,采用了对称的设计手法,让空间具有很强的序列感。
运用阴角线条塑造饱满的门厅顶面,引导目光往远处延伸。

让过道的旋转楼梯纳入空间,丰富空间的层次,顶面采用了梯形顶加设计,让原始的结构尽可能的保留,木格栅的设计和田字格的设计,保留了空间的纵深感,也增加形态的多样性。

一层客餐厅
客厅设计了宽大的落地窗,搭配地面的柔光砖,巧妙的调和了大面积胡桃色所带来的沉重感,让室内保持清透明亮的氛围。

沙发背景墙的设计采用了两边木雕中间大理石的对称设计手法,给人一种诗意东方,悠远宁静的感觉,木雕与奢石的装饰也勾勒出空间奢华的基调。
把院子纳入室内后,让整个客厅的空间更加明亮通透,墙面的胡桃木墙板与简约的线条,反射着细腻的光影的变化,增加了现代感。房屋中间的承重柱,采用了覆盆的设计,和柱础相对。
餐厅的颜色还是以客厅的基调为主,搭配同色系的餐桌,以平衡整体空间的色彩;整个餐厅西厨的墙面都采用了实木墙板+隐形门的设计,墙板造型让整面墙流畅起来。
左侧一部分墙内凹做餐边柜,展示隔板的设计,加上灯光的点缀,打破单调营,层次分明。岛台的设计让整个空间具有多冲更能,增加了家人之间的互动与交流。
岛台下面也采用和墙面一样的墙板设计,增加了储物与收纳。
顶上的圆弧灯带加吊灯,则采用了浅色,形成温暖而丰富的色彩层次,餐桌上的绿植景观,则是增加空间的清新感,让整个空间更加灵动。顶上列阵的排布不自觉呈现出仪式与庄重,赋予空间十分考究的内涵气质。
一层厨房
厨房设计了U型岛台,使动线流畅,同时也增加了台面的使用面积,局部吊柜搭配了玻璃柜门,拉伸整个空间的层次感。

冰箱做内嵌与整个橱柜融入一体,柜门板上的造型设计,立体精致又充满中式感。
一层西卧室
床头背景采用了海棠角的设计,海棠角是传统的中式造型,被视为典雅、端庄的象征,与中式的建筑美学相得益彰,海棠角里采用了中式最传统框景,墙面定制硬包,花鸟寓意着吉祥、繁茂、富贵。
中式壁灯安装在床头两侧, 赋予空间丰富而精致的美感,顶面的海棠角可以很好的与墙面的进行呼应,顶上的金属抽缝,也象征了主人的地位。
一层东卧室

整个空间还是棕色色系,米白色点缀,低调雅致,硬包也采用了喜鹊,梅花,等中式元素,中间海棠角里设计一个PU石皮材质,精致与粗旷的对比,边框用金属收口。

▲二层原始户型图vs平面布局图
问题:
原始露台空间浪费,利用率低,卧室被墙体隔开,空间零碎。
优点:
1、承重墙体少,户型可变性高,层高较高;
2、空间通风,采光好。
1、将西边卧室扩大,拆掉原始墙体,将两个卧室重新规划,形成一个大套间;
2、东边现浇露台,部分纳入室内,合理增加空间利用率;
3、衣帽间拆除部分原墙体,修改卫生间位置。
二层儿子卧室套房
卧室设计以雅致端庄为核心,色彩上以暖色调为主。
床头背景设计了木饰面加硬包的搭配,内嵌金属线条和灯带,弧形的造型也让整体很有中式的调性。
吊顶采用弧形反光灯带结合条线板线,展现中式风格的层次之美。

无主灯设计,空间通透不压抑。L形布局,拐角空间也能充分利用,玻璃柜门+搭载灯带,衣物拿取好方便,挂衣区、抽屉区、叠衣区功能分区明显,收纳空间充足。
自然的原木加上富含寓意的雕花线条,既经典又高级,而且随着时间的沉淀,会越来越有韵味,尽显东方文化内核~
窗边的C位留给了书桌,光线充足,窗边的景色更有助于缓解视疲劳。
二层主卧套房
满屋浓郁的胡桃木色调,暖黄灯光映照下,散发着绵长岁月感。
背景墙米色和琥珀色的调色搭配,打破了传统的沉闷感。
床头留出2m走廊,中间木料定制出隔断,外围木饰面包边,极简有品位!床头这面选择中式硬包,细节处彰显精致与格调。避免大面积实墙太压抑,两侧自由通行,大气的开放布局,整间卧室形成回游动线。
吊顶木雕的巧妙运用则为卧室增添了一份古典的气息,仿佛是穿越时光的窗口。
每一处细节都透露着对传统文化的深刻理解和尊重,射灯和灯带有效减轻强光直射带来的不适感。
衣帽间整体给人整齐而敞亮的感觉,巧妙的利用窗台设计一个梳妆台,连接柜体,梳妆更方便。柜门采用一门到顶,木质柜门组合玻璃门搭配开放格,满足了不同物品的收纳需求 。

中部做了一个高度一米八的衣柜,采用全铝金属边框柜体,四面钢化玻璃门衣柜,金属层板灯隔板,运用玻璃的元素让空间视觉更通透开阔。
书房整体以黑胡桃木色为主色调,既能够体现出传统文化的沉稳和内敛,又能够满足现代人对于简约和舒适的需求。书桌后面配备了一整面墙的博古架,书架不仅是用来存放书籍的,同时也可以用来展示藏品和装饰空间,功能颜值好,实用性也强。