向美风月人间,深爱烟火日常。


我们根据业主需要激光电视柜的需求设计了悬挑式的电视柜,不仅满足了激光电视能够收纳,也让客厅更具层次、时尚美观、设计感满满。
阳台与书房一侧打造柜体,增加收纳空间,带来视觉上的整体感;另一侧打造洗衣区,满足日常生活需求。
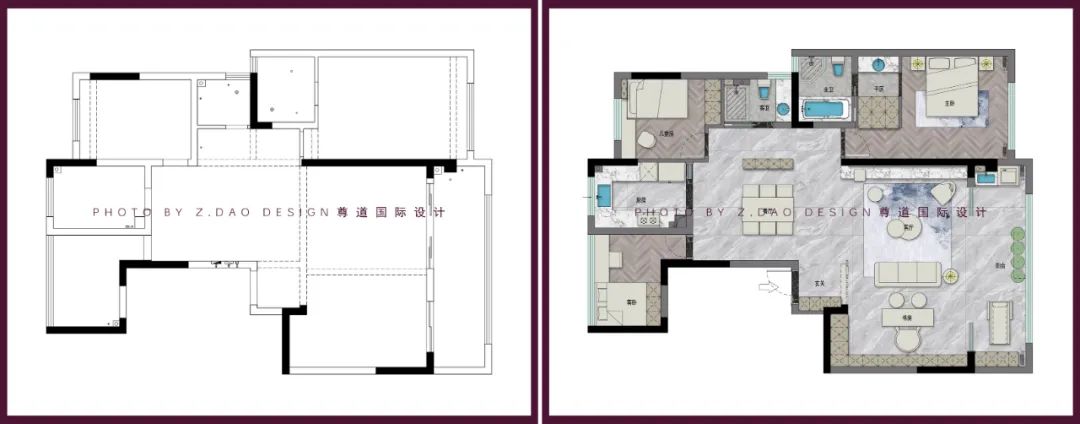
在玄关两侧分别是餐厅和客厅,从空间动线来说很通透。
餐厅靠近厨房,最大程度的优化了居家动线。
餐厅与次卫之间巧妙地运用悬浮式餐边柜进行隔断以及结合山水画以及让整个空间更加柔和的奶白色主题颜色会使整个用餐环境更舒服。同时在餐厅与卫生间及卧室等区域形成一个洄游动线。






主卧设计也是以灰色系为主,素雅的软装床品营造出舒适的气氛,运用光与影营造温馨与时尚氛围,铺叙自然质朴的样貌,营造纯粹的宁静氛围,让人可以放松一切感官,享受生活。
中式风格的抽纸盒、床头柜,于细节处凸显精致雅韵。
主卧空间在保证原始空间不变的情况下,合理区分出主卫的干湿区,干区设计背对背式衣帽间极大的增加了收纳储物的空间。


儿童房采用蓝绿跳色,柜体尖顶造型丰富了整个空间的趣味性。
客卧采用榻榻米半屋布局,临窗位置设计书桌,柜体与书桌一体设计,大大提升了空间的利用率。















