本案设计以量体的切割、几何雕塑的手法,低彩度灰色调,让身体于居家感受到一种舒适且隽永的设计感;更轻量化量体的沉重性,采沟缝脱开或不落地设计,为居家带来轻盈感受;佐以曲度线条,柔和空间表情,圆润了生活感受。
▲负一层原始户型图vs平面布局图
?负一层户型改动说明:
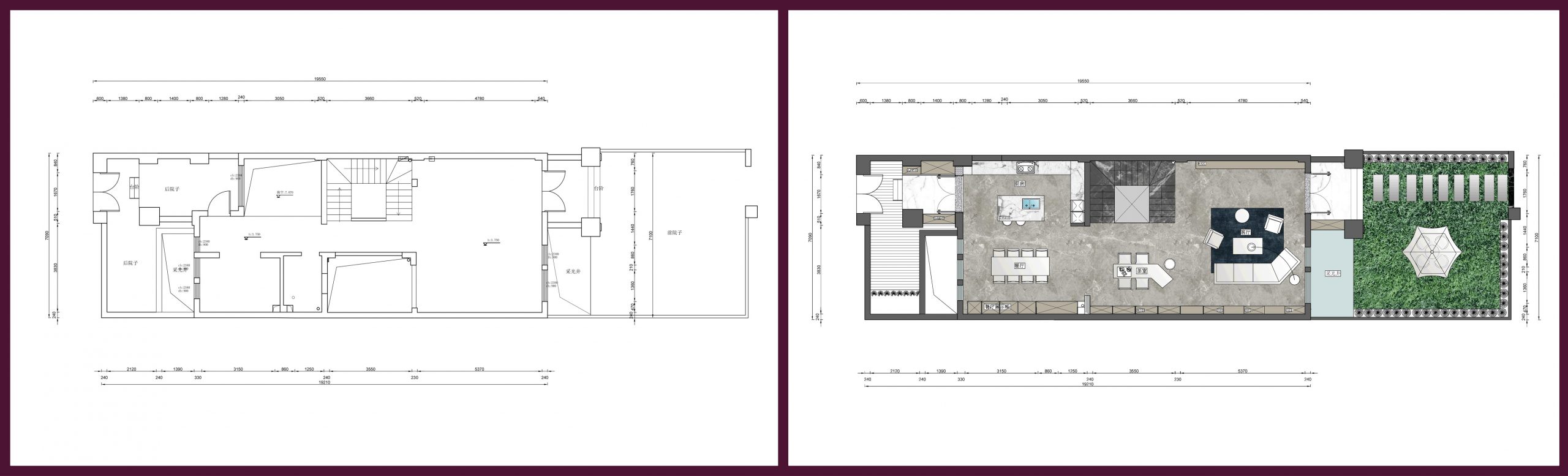
▲一层原始户型图vs平面布局图
?一层户型改动说明:
一楼主要空间为客厅,餐厅,厨房和茶室外加花园。
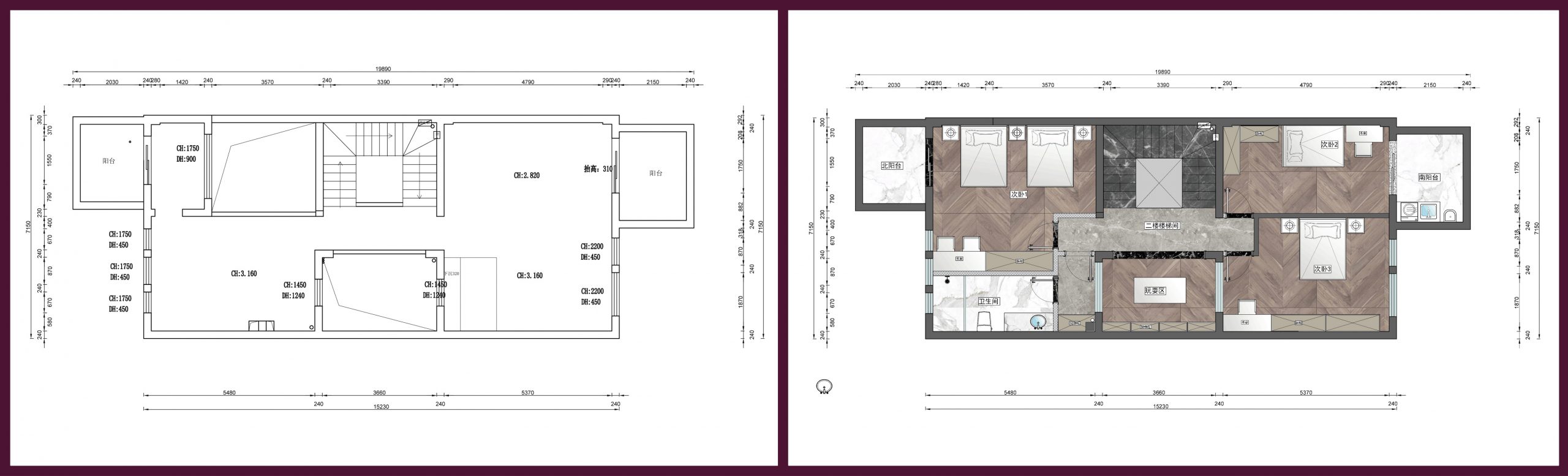
▲二层原始户型图vs平面布局图
二层平面方案中,把原本两处挑空加入隔板,利用成为室内面积,扩大了二层室内的使用率。
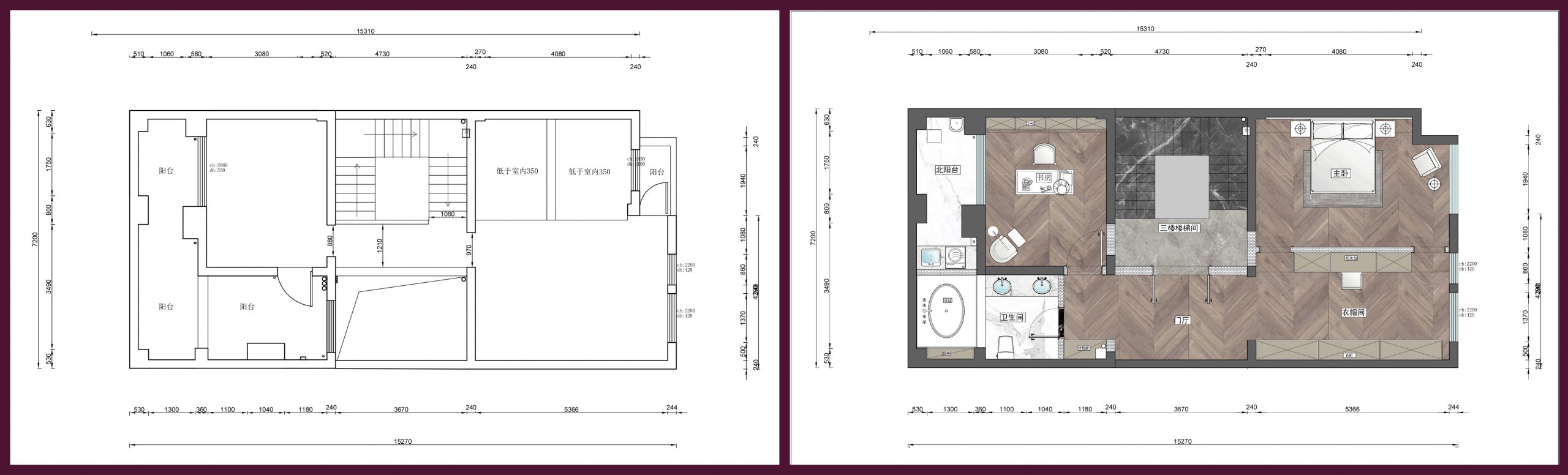
▲三层原始户型图vs平面布局图
三层完全作为户主个人使用,是较为隐私的空间,由门厅进入后,空间依次划分为主卧,衣帽间,书房和卫生间。
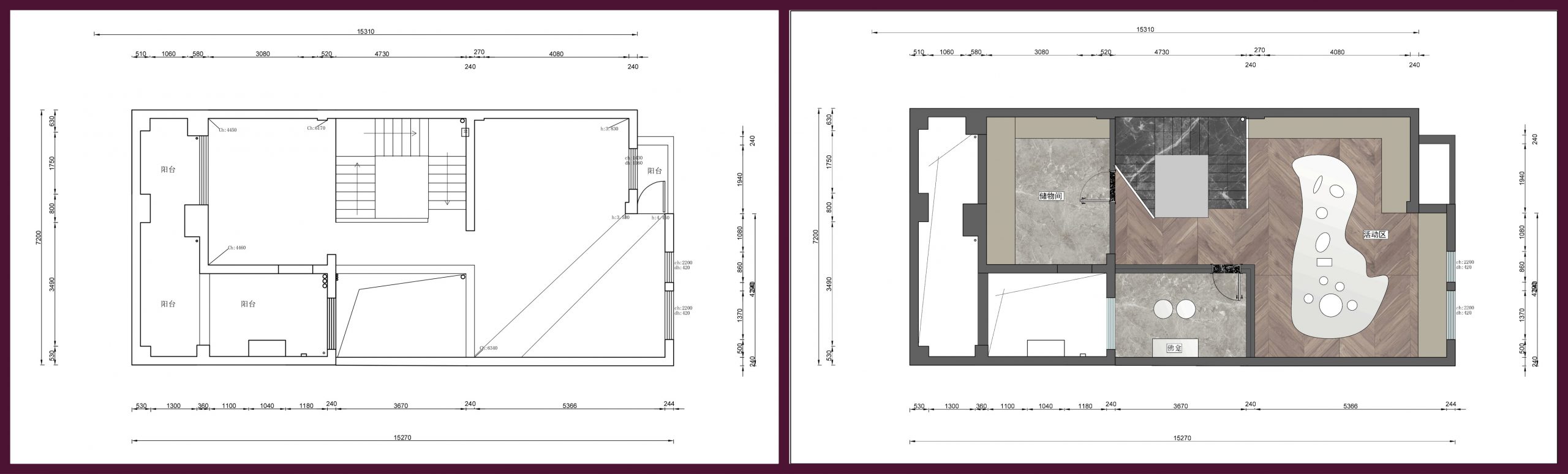
▲四层原始户型图vs平面布局图
四层小阁楼经改造后把空间分隔成一个儿童玩耍去和一个佛堂。
DINING ROOM
▲开放式餐厨一体的空间尽可能的给予空间的流通性与交流性,保证了采光与空间的延伸。
LIVING ROOM
▲客厅空间使用大量的木格栅,丢弃冗杂的布置才可回归生活的本质,与楼梯透而不通,在分割区域的同时又保留了透气感。
▲背景墙的大理石进行分割更加有层次感,天然纹理让空间轻盈而富有质感,现代美学于宁静中优雅盛放。
GENUINE
▲入户木饰面与镂空设计带来一定视觉上的层次感,木饰面与白色大理石台面带来温润又和谐的明度对比。
LEISURE AREA
▲负一层休闲健身区,作为业主娱乐和休闲、健身的区域,该空间强调自由交流,亦是业主安放一切纷扰的宁谧之地。
MASTER BEDROOM
▲主卧室同样使用大量木饰面,深灰色的床头背景,与木饰面相呼应,深色系间的衬托更加具有质感。超高的层高拉伸空间,简单大气。
CLOAKROOM
▲衣帽间没有划分独立空间,与楼梯门厅为一个整体,使空间极具纵深的视觉层次感。
SECOND BEDROOM
▲次卧室整面的收纳空间,满足收纳需求的同时,运用最简单利落的线条,去除人为痕迹,与同样简单的床头背景呼应,使得空间拥有整体感,简单但不小气。
DAUGHTER’S ROOM
▲女儿房的地台设计对卧室进行了“隐形”的分割,使空间有了功能分区的同时却不会让空间感有局促的变化。
SON’S ROOM
▲男孩房整体色调选用清爽澄净的蓝色调,干净明亮,带来愉悦的视觉效果。
STUDY
▲书房的功能规划比较简单且实用,书桌不靠墙壁可以拥有更多的空间感,书柜作为整个书房的背景带有隐藏式灯带,简单但瞬间烘托出氛围。
VIDEO ROOM
▲影音室加酒柜的设计,实用又附有装饰性,采光井的小景为原本较为封闭的地下室空间带来活力。

















