在繁复的城市生活中,以这样一处安静而景美的新中式风格居所,安放身心,满足人们对家的期待。设计围绕“传统慢生活”的定位,秉持“大宅魅力,传承之美 ”的理念,融入传统东方元素和现代科技智慧,倾力打造现代人居生活的意境空间。
运用材料:木饰面、大理石、硬包、不锈钢、艺术漆、长城板及pu线条等。
『认识屋主』
大宅魅力,传承之美。

本案的屋主想将此处作为度假使用,每周只居住1-2天,喜欢新中式的素雅简净,希望居住格调能够舒缓疲惫于都市节奏的身心,生活于此间,无过多尘杂琐事,心净且轻,安逸闲适,回归最真实的恬淡心境。
『设计他们的家』
新中式 | 双拼别墅 | 金科·半岛1号
原始户型分析
1、户型方正;
2、光照充足;
3、空间没有合理规划。
方案改动说明
1、空间合理规划,动静分离;
2、楼梯踏步整体下移增加美观度。
◻️
Leisure Area | 负一层休闲区
∨

▲SU立面设计图
负一层入口处的台阶向外延伸形成一个地台,拉伸了空间的尺度。地台旁放置了一处枯景,增加了整体空间的意境。借助墙面的窗口可以窥探到酒吧区的动态。墙面的护墙造型与负一楼的休想去相互呼应。沿着突出墙面的楼梯扶手,即可带着朋友进入酒吧区小酌一杯。
从楼梯上至负一楼,映入眼帘的是一个超大的玻璃酒柜满足业主的日常储藏和展示。一旁的岛台石材和木饰面的碰撞,及有高级感也有温度。
前方的金属格栅巧妙地将酒吧区与休闲区相隔,增加视线穿插,两个空间既是整体又各自独立。休闲区旁边的天井也被设计师做成一个小的景观区,将室外的景色收入室内,配上旁边的硬包和护墙。表达极简自然而内敛的心理感受,空间传递不同的仪式体验,以和谐自然的材料 肌理化表现,由光影强调画面的纯粹。整个空间采用了无主灯的设计,提升了空间的舒适度和层次感。
休息区做了一个巧妙地设计,将观影设备藏于柜体之中。平时不使用的时候将其藏于柜体之中,从外面看来是一整面的背景墙,采用对称手法将中式元素容纳其中。需要使用的时候将柜体打开即可享受一场视听盛宴。
原始户型分析
1、此户型方正规整起;
2、庭院空间开阔,房屋层高较高,居住舒适;
3、空间整合度不够。
方案改动说明
1、缩小原始储藏间,开阔了入户区域的视觉感;
2、拆除厨房门洞,并增加吧台,提高了整体使用功能以及与客餐厅的互动;
3、客厅区域大挑空,增加大气与沉稳;
4、取消客厅与书房间的墙体,增加视线穿插。
◻️
Living Room|一层客厅
∨

▲SU立面设计图
一层新中式,入户区做了一个端景,木饰面,简单的软装,打造一个略带禅意的新中式,进入储藏间的门用长城板做了隐形门,和入户造型连为一体,无主灯的设计,简约大气。
客厅空间挑空,取消和书房之间的原有墙体,采用木格栅和大理石做了挑空造型墙,木格栅的加入增加了书房和客厅的视线互动。突出来的大理石增加了的立体感和设计感,地台上方的悬空做了空气加湿器,增加一丝仪式感。
客餐厅的格律是要大而简。色彩的变化、硬包的选择、摆设与软陈的排列,都在践行“繁而不杂”的生活美学。人字形吊顶及墙体造型都在处处透露中式美学的独特韵味。
表达简单自然而内敛的心理感受,空间传递不同的仪式体验,以和谐自然的材料 肌理化表现由光影强调画面的纯粹。
格栅的通透视感处理,带入材料的原始样貌,以吊顶结合植物点缀空间,串连场域和场域之间的关系,满足一家人的多样社交功能。
透过量体的虚实及内崁手法表现柜体收纳,将温暖舒适的元素表现于场域中。在一个休闲的午后,品一壶茶,看一本书,温暖的阳关照射进来,享受安静舒适的午后,进入书的世界。
原木主色调贯穿其中,东方元素相结合,多功能橱柜满足多重收纳,厨房是家中最不可缺少的地方,人间烟火气,最抚凡人心。
原始户型分析
1、空间格局零散;
2、挑空区域过大。
方案改动说明
1、挑空区域适当缩小,现浇出主卧室,满足业主居住需求;
2、原始卫生间外扩,为女儿房增加了一个衣帽间。
◻️
Master bedroom |二层主卧室
∨

▲SU立面设计图
父母房我们想要它简单又沉稳。新中式硬包加上无主灯的设计,加入灯带和金属条显得空间更为简洁和层次感,简约的软装搭配使空间多了一层表情和姿态。衣帽间的柜体连结及睡眠区空间,柜体设计以通透的黑框玻璃结合木饰面,使空间开阔明亮亦保有隐蔽性。
卫生间干湿分离加上双台盆,最大程度的提高使用舒适感,顶地面中式元素加入,保持与主卧同一风格,汗蒸房提升父母的生活品质。
◻️
Daughter room |二层女儿房
∨

▲SU立面设计图
女儿房卧为现代风,运用现代手法进行背景墙切割,简洁利落。再通过光滑的白色涂料和温暖的咖色硬包形成对比,带来视觉上的赏心悦目。赋予低调内敛的气质,以另一种更闲适、中庸的风格呈现。
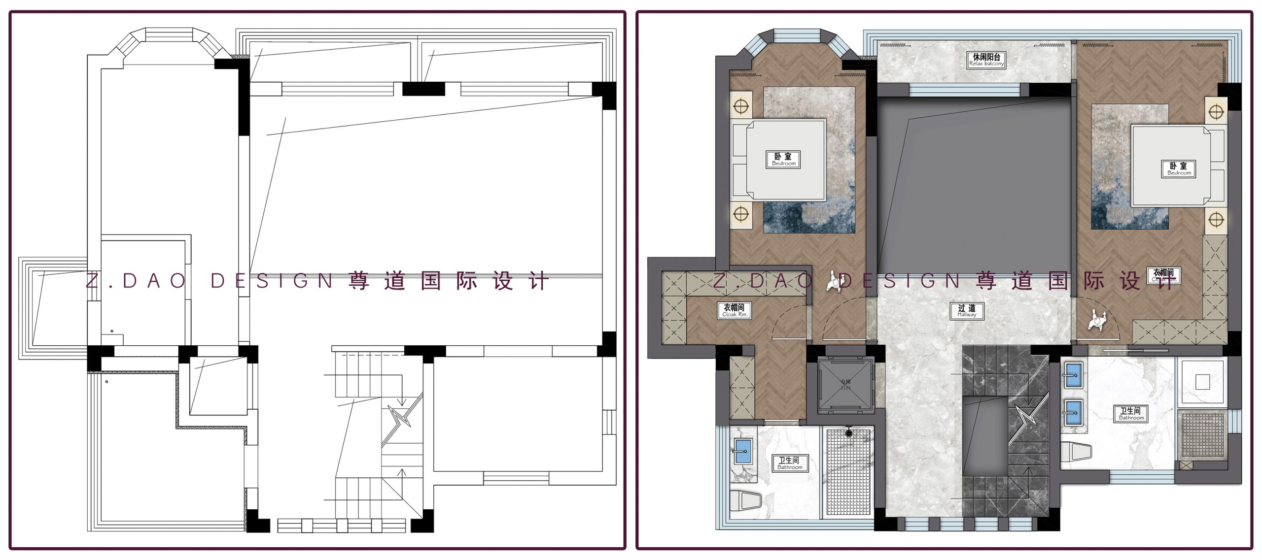
原始户型分析
1、三层空间规整;
2、露台与室内关系处理不当。
方案改动说明
1、三层作为主人房区域,将南露台的空间扩入室内,增大空间开阔性;
2、左边南露台扩入室内增加小孩房空间;
3、北露台现浇做成电竞室,满足业主的精神需求。
◻️
Master bedroom |三层主卧室
∨

▲SU立面设计图
三层主卧与其他空间的沉稳、简练不同的是以浪漫法式为主风格,米色涂料加上精致的PU线条,配以壁灯,打造一个舒适优雅的室内空间。旦暮晨昏,感性生活。空间承载的是一种实实在在的生活,是能够感知人的情绪、存放身心的居所。
午后轻风,纱帘微动,一束束暖意照进这开阔空间,质朴的材质与颜色结合,让素雅低饱和度的空间更加通透理性,凸显出休闲浪漫的味道。
◻️
Children’s room |三层儿童房
∨

▲SU立面设计图
儿童房的软装与配色延续了三楼主色调,温柔的米色给小朋友带来舒适放松的感官,柜体和硬包进行功能分割,简约设计里充满童趣天真,仿佛能透过漫长岁月,看到幼小身影一点一点长大。
◻️
E-sports room |三层电竞房
∨

▲SU立面设计图
业主想要一个休闲娱乐的地方,可以和对象一起打游戏、看书,进行相同的兴趣爱好,我们为他打造了一个双人的电竞室,蓝色为这个空间的基调,营造科技感。一起与爱的人做喜欢的事,海子言:黎明到黄昏,阳光充足,胜过一切过去的诗。让充沛的阳光自由地倾洒,照耀在空间内的每一处,让人从繁忙的都市生活中揉碎内心的疲惫。
◻️
Cloakroom |三层衣帽间
∨

▲SU立面设计图
衣帽间依然是延用主卧的无主灯设计,和主卧法式风格不同的是,衣帽间采用现代风。白色柜体使得空间干净明亮,在柜体的设计中,敞开格和平开门兼用,满足业主的多重收纳。玻璃柜门的运用也使得空间更加通透明亮。克制的白为空间注入静谧的格调,呈现舒适宜人的自然氛围,暖色调的加入,烘托出温馨惬意的生活气息。
三楼卫生间和二楼主卧布局一样,但是配色不同。二楼主卫更多的是沉稳,三楼主卫则要年轻化许多600*1200瓷砖上墙尽显大气。
『幕后花絮』




































