项目案名 |《 喜 棠 》
项目地点 | 龙湖丽丰西宸原著 别墅
项目信息 | 400㎡ 别墅
设计风格 | 静奢风
将奢华解构为可触摸的温润、可凝视的深邃、可感知的从容,实现空间向精神场域的价值跃迁。
运用材料:木饰面、岩板、金属、老木头等。
DESIGN

DESIGN

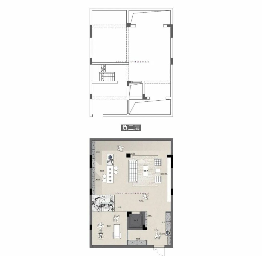
负二层入户区





负二层会客厅

步入地下室空间,首先感受到的不是设计本身,而是一种“氛围”:安静、沉稳,但却极具存在感。开放式布局串联起各个功能区,挑空设计,既模糊了空间界限,又营造出温馨的第二客厅氛围。

整体采用了浅色调,墙壁和天花板使用米色,营造出温馨且宽敞的视觉效果。木质元素在家具和楼梯中的运用,增添了自然和温暖的氛围,与浅色调形成和谐的对比。

将天井的光线充分引入,使整个会客厅光线明亮,营造出一种“天光云影共徘徊”的诗意氛围。夜晚,星光点灯的意境,天井之下,而是一场充满仪式感的心灵之旅。




负二层品茗区

会客厅与品茗区形成气场舒适的社交场,沙发背后是品茗区,温润的木质柜体和石材岛台,柔和的灯光,光影的处理像是一种无声引导,让人不自觉地沉浸其中。

负二层楼梯


负二层健身区

DESIGN

负一层保姆间

负一的卧室做了立体悬浮窗口化的设计,不仅保证了卧室的采光,斜面窗口的处理与右侧楼梯相呼应,也让空间更加具有立面感。

我们希望它给人一种轻盈、通风和飘逸的感觉。采用了极简主义的设计,两侧大面积的落地窗设计,使得自然光能够充分进入室内,增强了空间的通透感和明亮感,为居住者提供兼具私密性与开放感的独特体验。
DESIGN

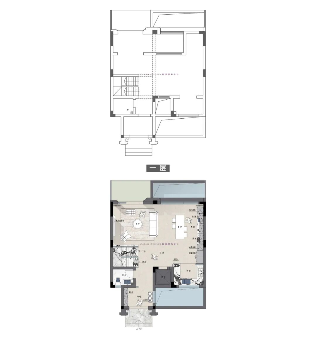
一层入户



一层客厅



一层餐厨厅




DESIGN

❹父母房设计在电梯口方便老人上下楼
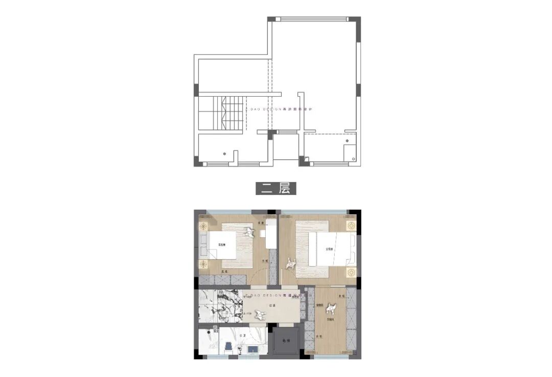
二层父母房




二层儿童房



二层卫生间

DESIGN

三层主卧



三层儿童房

DESIGN
➊空间零散,过道狭长,采光很好❹狭长过道做了空间的分割
四层



独立洗衣房被设置在顶楼区域,在这里,洗衣、晾晒、折叠、收纳一气呵成,开放式收纳格预留清洁剂专区,让琐碎日常在极简设计中优雅隐身。其实:“真正的奢华,是让生活痕迹优雅隐身。”