居所的设计,不仅是呈现一个“家”的功能符号,更是注入精神力量、达至情感共鸣的艺术化创造。正如朱光潜在《谈美》一书中所说的,“艺术的任务是在创造意象,但是这种意象必定是受情感饱和的。”以艺术升华生活,是家庭生活方式的多元集合,亦是有爱、有温度的精神载体。
一起认识屋主
本案位于江苏常州。业主是关注我们公众号一年多的粉丝,“你们的案例我每期都看,我就在想能这么认真做好公众号的公司,一定值得信赖!”。即使相隔千里,依旧将家委托于我们。
尊道坚持“尊道重德,行胜于言”,以严谨的职业态度和完善的项目管控模式,为业主塑造独具一格的居住空间气质。
参观他们的家
▲一层原始户型图vs平面布局图
原始户型分析
1、户型总体方正规整;
2、南北庭院,房屋层高很高,居住舒适;
3、餐厅厨房位置太小;
4、卫生间空间狭小。
方案改动说明
1、拆除入户正对墙体做造型处理,提高空间视觉感;
2、调整原厨房位置至外扩北院位置,增大了厨房的使用面积,同时原餐厅空间也得到释放;
3、原卫生间拆除做室内景观区,提高入户玄关视觉开阔感。
玄关
▲效果图
入户,方形开格虚实结合的屏风墙,隔而不断。以视觉上易于感受到的方式,铺叙入口玄关“白”的格调基底。珍藏手办、透光的设计,一切都是为了在循序渐进的归家秩序之中,注入生活意趣。
客厅
▲效果图
呼应体块结构的立体之美,灵活运用简洁的几何线条语素,令沙发的围合、隐约可见的楼梯,以及悬浮雕塑的构图,呈现出不拘型格的审美。
▲效果图
顶面和墙面木饰面的融入,无主灯设计,窗外的自然光影,是空间中关乎艺术、生活、自然、三者关系的最佳见证者。
在这个高速发展快节奏的时代里,常常忙碌于“回应外部世界”的我们,需要有一处平静和真实存在。电视背景墙和沙发背景墙大面积留白,予人直面日常之外的空白精神。
餐厅
▲效果图
餐厅是回到日常居住本身的空间叙事,纳藏一日三餐的烟火气。从家人围坐的圆桌,到层次井然的叠浮式楼梯,斜坡顶面,中庭定制圆镜,在对比手法下,所有的艺术化解构,造型+色彩+布局突破束缚,木饰面色、石材、岩板、灰色等相对沉稳色彩折射出业主对家的镜像感受。
梁启超先生说:「凡人必常常生活于趣味之中,生活才有价值」。人生于世,需要有一点高于柴米油盐的品相。我有一癖,与趣同行。
厨房
▲效果图
超大的L形橱柜,高低柜组合,与整体空间的灰度相互共鸣,在餐厅与厨房之间还有设有早餐台,吧台区顶面做了坡度处理,保证了层高,在吧台区域顶面饰面与客厅顶面材质呼应,满载生活之气的木色,让人们从感官上领略自然。
▲二层原始户型图vs平面布局图
原始户型分析
1、空间规整,空间分割;
2、二层作为起居区域,空间舒适;
3、过道区域狭小。
方案改动说明
1、拆除南卧室门洞墙体,并向室内移动增大了过厅区域尺寸,行走动线更为舒适。
2、南北阳台扩进室内使用,增大了阳台的利用率。
老人房
▲效果图
老人房的设计,讲究禅意的“无边限”。秉承对自然的尊重,彰显出原始材质的本来面目,隐形门与柜门形成半围合状,以淡雅节制,深邃的为境界追求。
女儿房
▲效果图
空间的自由是设计师需要考虑的重要课题,是居者想象力与审美品调的自由。粉得柔美,白得纯净,女儿房低饱和度的配色如妈妈怀抱般以最柔软的姿态散发着温暖与安全感。简约的法式线条与雕花,是小仙女梦想中的小世界。
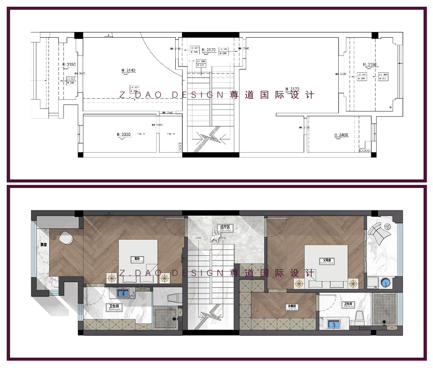
▲三层原始户型图vs平面布局图
原始户型分析
1、三楼北边空间零散,不规整利用率需提高;
2、采光极好。
方案改动说明
1、增大原卧室门洞,做对开门处理,提高主人房的仪式感;
2、原北边赠送区域,做衣帽间以及临时婴儿房处理;
3、南北阳台划进室内提高住宅空间利用率。
4、三层空间以宽阔的尺度,兼纳卧室、主卫、衣帽间三个内部功能场域,分别满足居者的休憩与休闲需求。
主卧
▲效果图
所见即未所见
What you see is what you don’t see。
主卧室以大面积白为主调,将思想、空间、物件、还原为最简单的形式,唤醒白的张力,给居者一个挚真体验的宁静住所。自然光和人工灯光设计相结合,以光影强调轮廓与气氛,追随无华的当代性,不过分于依赖宏观与华丽的事物,使空间冷静而不显得傲慢。
衣帽间
▲效果图
步入式衣帽间,开放与封闭的结构关系,通过空间的交错,形成一个交互相望的室内组合。人字拼木纹地板和横向层次上采用不同材质柜门,缩短了一字型空间的视觉行程。确保极高的内在品质前提下,实现创意的最大可能性与极简性。
主卧卫生间
▲效果图
经由衣帽间进入卫生间,结合功能需求与设计原理,卫生间采用三分离设计,打破单调的实体格局,赋予空间更细腻的交互关系思考。运用黑色和浅色的地砖墙砖铺设,层次分明。
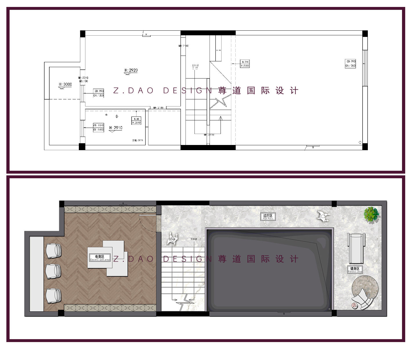
负一层空间
▲负一层原始户型图vs平面布局图
原始户型分析
1、空间宽敞,格局方正;
2、整体存在错层空间;
3、采光较差。
方案改动说明
1、原负一部分空间地面拆除做挑空处理,并抬高原始地面高度,使空间之间动线更为平整;
2、北边原始空间,保留原天井位置,拆除空间多余墙体是空间更为规整;
3、负二原始天井位置墙体拆除做隔层处理,负一空间连接,提高负一负二空间的采光度。
电竞室
▲效果图
一改白的基调,电竞室设计以暗黑色、银色相互搭配,填以丰富的绚烂灯光,形成的空间与外界适度的隔离感,让居住者回归真正自我的场域。
多元的私属空间配有电竞桌、PS游戏区,1.8m钢铁侠超大手办,两侧设立可调节的渐变色展示收纳柜,放置一些珍藏的游戏手办及AJ。潮流与个性,折射出居者的审美精神。
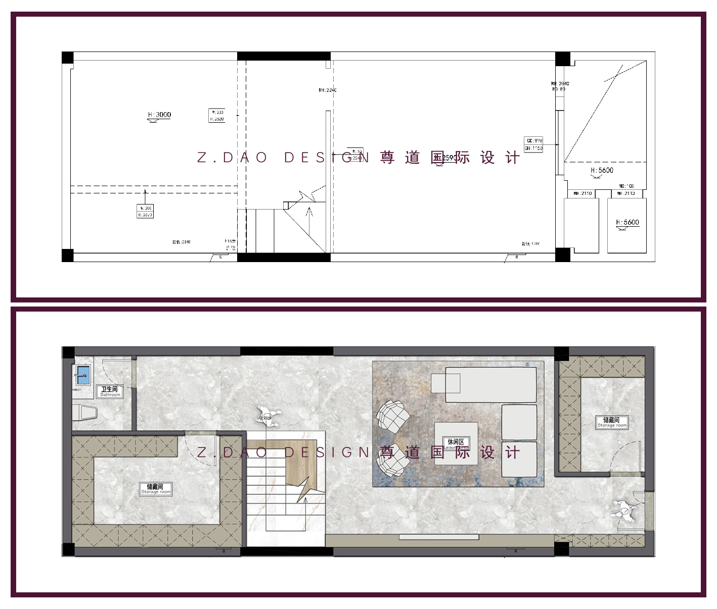
负二层空间
▲负二层原始户型图vs平面布局图
原始户型分析
1、空间宽敞,格局方正;
2、空间存在错层,空间过厅过度不佳。
方案改动说明
1、负二原始天井位置墙体拆除做隔层处理,并设定地库入户储藏间提高收纳率
2、拆除原楼梯并新建,优化了整体楼层行走动线,提高空间使用率
挑空会客厅
▲效果图
繁华其实犹如云朵.内心的纯粹才是背后的永恒归所。
Glittering things as clouds,Innerpurity is the eternal place behind.
挑空会客厅整体以白色为整体基调,冲破繁华的束缚,呈现低调、宁静和沉思。
运用艺术性表达空间的哲学,婉约地将艺术感与空间的气场共融,使得维度内的线条表达与意识存续变得流动而自由。
▲效果图
以自然相融的慢设计方式,自上而下的视野将将天井的自然光线引入空间之中,模糊了室内和室外的边界,形成连续的对话,使空间始终是饱含丰沛情感,营造一种和谐放松的状态。
室内通过结构、材质、灯光形成的明暗对比与温度观感的差异,让空间有了律动。并结合触觉、柔软、简约和永恒的品质,呈现一个令人向往的生活境界,完成空间内外印象的再次铺叙。



















