时光侵蚀,万物生长,家在一年又一年的光阴里蹉跎,沉淀情感,变得富有韵味与温度。
认识·屋主
本案的业主是一对从事健身事业的90后小夫妻,用奋斗书写他们最美的爱情故事。世界如此美好,而我们很荣幸,能见证业主朋友的美好,满足他们对家,对爱,对未来的憧憬~
设计·改造
现代风 | 叠墅 | 荣盛书香府邸
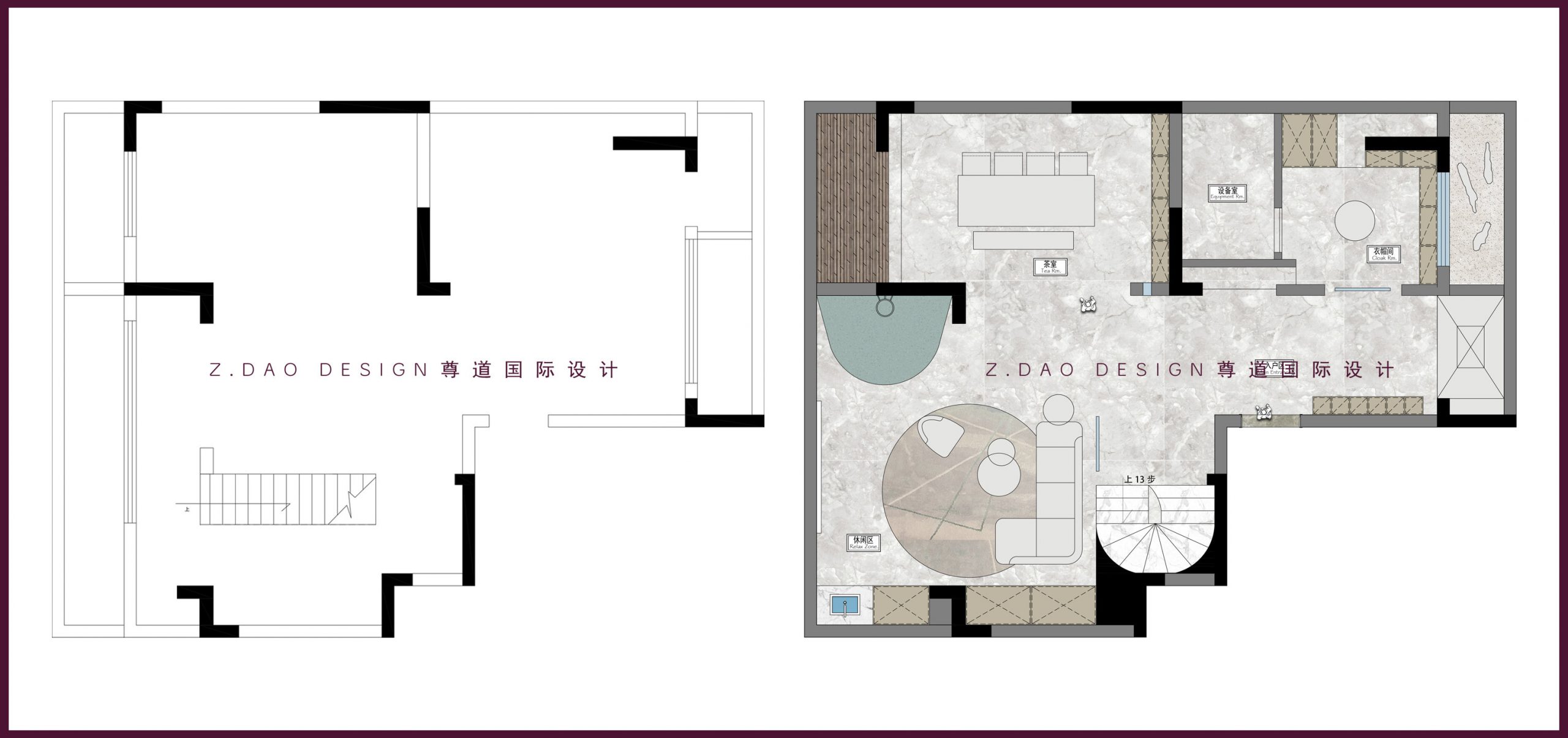
▲负一层原始户型图vs平面布局图
▲负二层原始户型图vs平面布局图
原始户型分析:
问题:楼梯位置不合理,楼梯占面积过大,空间存在浪费。
优点:南北双天井采光通风较好 。
方案改动说明:
1、将南北两边天井墙体拆除,引入大量自然光。
2、将原始楼梯拆改至角落,采用弧形楼梯形式。
3、保留入户及休闲区的大面积挑空,局部设计隔层做卧室套房使用,提高空间利用率。
归·入户
业主大多是从地下室回家,地下室的门厅端景左边造型柱,设计师以穿插的手法,与内部书房空间留有若隐若现的暧昧气息。
右边是一扇黑色竖条格栅,看似屏风,却也是门。日升日落,云卷云舒,金属框格栅可根据不同时间的光线移动开合,透过细细的格栅,光线在室内投下斑驳光影,带来绵绵暖意。
顶面局部采用了不锈钢水波纹表面纹理起伏不定,波光粼粼,好似一层层浪花在头顶荡开原本平平无奇的顶面“蹭”的一下就亮眼了起来。
享·休闲区
负二层的休闲区上方挑空,整个区域全部打通做开放式,缓解地下空间带来的视觉压抑感。
空间采用多种不同的材质和色调对空间进行塑造,使得空间看上去丰富许多,合理的运用跳色和光影,挑空式的休闲区空间感很强,营造出的空间效果看上去很宽敞。
地下空间采光受限,楼梯部位、吧台酒柜等大量采用漫反射的光源设计,渲染自然舒适而温馨的氛围。
灯光与金属碰撞的浪漫光感,不同的材质同时表达出氤氲观感。
利用原始承重结构设计了近5米高的岩板造型,底部加壁炉点缀,营造氛围,空间也更通透。
另外,结合业主喜好在休闲区设计了篮球框,满足了男业主的篮球梦。
米色弧形沙发特有的视觉柔和与材质触感的温柔是和空间气质的互补,酷炫的空间不乏温度。
宁·茶室
茶室是一个安放心灵的空间,在设计上以简约、自然舒适为主。温润的木色和清雅的绿植释放一种素雅、静谧的空间气质。
书架的格子柜体,在使用上得心应手,有藏有露的设计,既能放常看书籍也能收纳起一些藏品,为生活平添了许多悠闲和禅意。
默·主卧
卧室大量使用只见光不见灯的手法,减少装饰的繁复;大面积落地窗设计,可将天井的采光引入卧室;床头装饰画在视觉的聚焦点,装饰之余突出整个空间睡眠区的主体地位。
卧室基调与负二公共区域保持一致,深色木饰面与水泥灰的艺术涂料奠定整个空间的基调,深邃稳重而又不失时尚感。色彩上做减法,以不同程度的深灰色系呈现空间细微的层次变化。
▲一层原始户型图vs平面布局图
原始户型分析:
问题:
1、一层原始厨房较小满足不了一家六口使用需求。
2、原始楼梯占用了一个朝南卧室空间,规划不合理。
3、入户无收纳空间
4、公共卫生间较小
优点:
户型方正,南北通透。
方案改动说明:
1、将靠入户的卧室改成中厨,原始厨房设计成西厨和餐厅。
2、将楼梯单独放置入户左边,解放原始楼梯间将其变成小孩房。
3、将入户右边墙体拆除用高柜代替墙体,增加入户收纳。
4、一层保留一个卫生间,将公共卫生间扩大提高使用舒适度。
居·客餐厅
厨房分为中西厨,西厨的空间和餐厅衔接,更加宽敞,西厨既可以增加储物空间和操作台面,也让功能分区更明确。
电视柜采用镂空悬浮的形式消弭柜体的厚重感,让整体空间更加轻盈明亮。
一楼空间相比较地下空间像是加了一匙梦幻的奶油色调,调配出理想家的轮廓,佐以多元材质与纹理堆叠出层次,制成甜而不腻的居家质感,休闲感糅合其中,以轻松的开场闲叙人生若只如初见的惬意时光。
客餐厅采用无主灯设计,所有的灯源的出现都是在需要的位置,在保证照度足够的情况下,还要舒适。
客厅L型的暖灰色布艺沙发搭配上前方的小茶几,简洁的造型十分耐看。沙发背景墙上的木格栅装饰,与纯色艺术涂料墙形成了色彩上的对比,干净利落的线条展现出空间的几何美感。
舒·父母房
考虑到逐渐年长的父母生活的便捷性,一楼保留父母房间,与客餐厨一系列生活区域集中。
老人房床头设计了原木半墙内嵌灯带,侧边一排L型顶天立地收纳柜,柜子弧形转角设计,更加柔和还能避免磕碰。
卧室可以简约不复杂,但一定要够舒适,摒弃多余色彩与装饰,感受沉浸式睡眠体验~
暖·儿童房
区别于五颜六色千篇一律的儿童空间,呈现了一个不一样的儿童房。为了让小朋友有更多的活动空间,有别于其他榻榻米,小孩房采用地台设计。
回归淳朴自然的原木风,整体空间以艺术涂料和原木元素融合营造出温暖舒适、随性治愈不动声色的高级感。日式地台床+内嵌灯带的设计让原本空间更加开阔视觉上更显通透明亮。
适·客房
客卧是业主妹妹居住的房间,采用榻榻米设计组合书桌柜+封闭式衣柜一体,妹妹的学习、收纳“一键”轻松搞定!
简约白色系榻榻米床,侧边还能增加书柜空间。








































