

缺点:门厅略显小气;楼梯不美观,影响客厅采光。
优点:客厅空间大;院子面积大,且功能性完整。
平面方案优化解析:
1、将原始楼梯需要美化;
2、厨房做成开放式,中西厨合体,增加厨房使用空间;
3、外门厅扩大,进门视野开阔,补足原本空间不足的客厅 。
跃·客餐厅



餐厅和客厅的跃层位置,我们加宽了楼梯,并且利用墙体做了护栏,墙体之上利用金属做扶手。
墙体与墙体之间故意做了断层空间,夹了金属,层次追求和质感同时拥有;把矮墙作为护栏,让空间更有体量感。
沙发背景墙利用天然黄洞石做了背景,内凹带弧的造型添置电子壁炉,金属的包边让造型层次与高级感提升。沙发背景的两边是故意拆的两个落地窗,室内外互相借视。
电视墙地台和楼梯相连,石材的材质运用,做到了无缝表现,相连的地台形成豪华踏步,踏步故意延伸,空间有了层次。

圆形餐厅吊顶,加上grg的波浪加持,让餐厅有了涟漪感,餐厅与室外是直视的,下雨天会更有感觉。
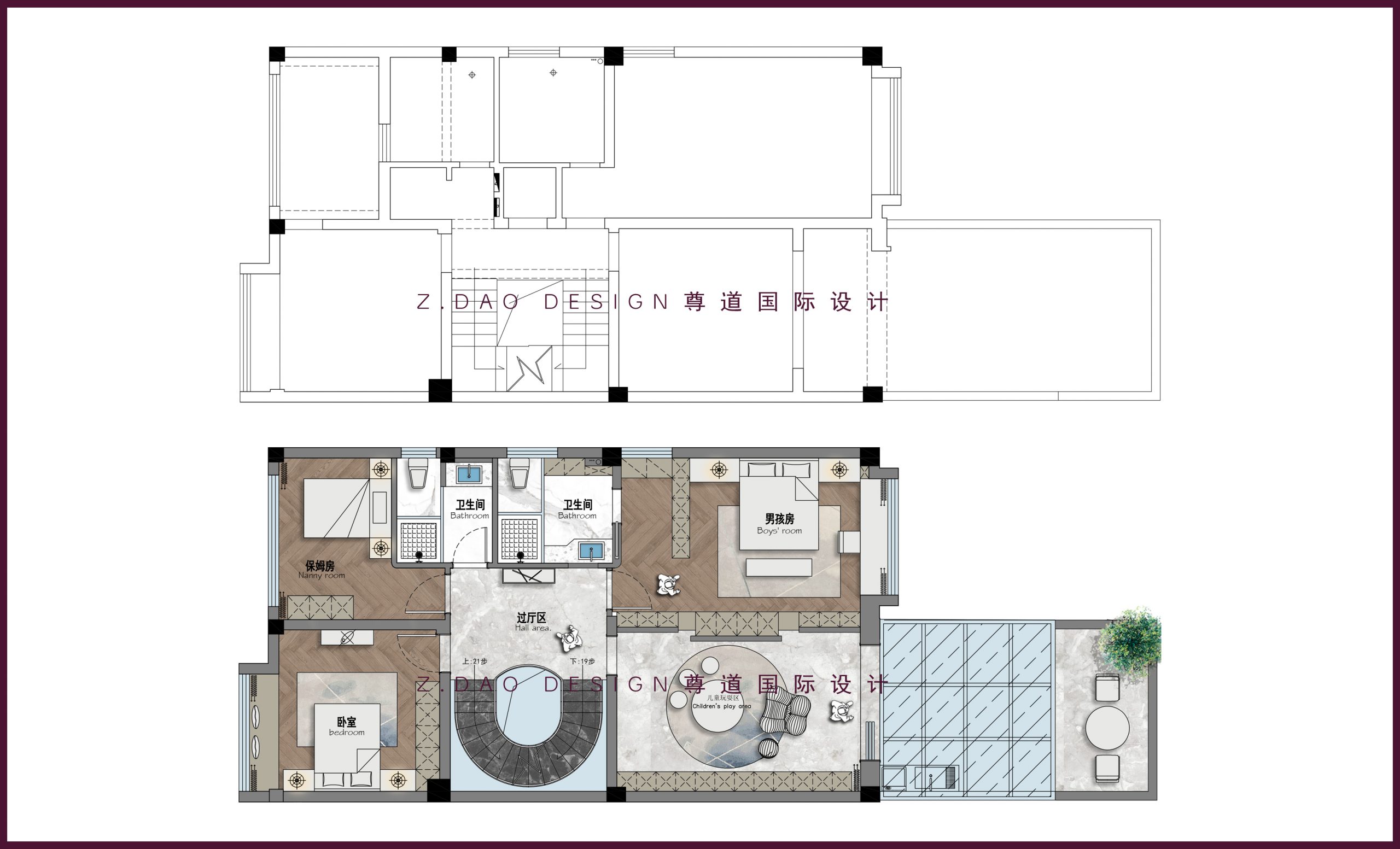
品·茶室





优点:房间空间方正,承重墙较少,可改动大。
平面方案优化解析:
1、二楼三个房间;
2、过厅区扩大,使空间大气。
舒·男孩房






趣·休闲区


恬·客卧


二楼客卧整体简洁舒适为主,床头背景墙简单不失美观,柜子设计实用不失独特。
敞·主卧套房







独具趣味的摆件为空间带来别样的柔情在现实和梦幻的交界处用和谐柔美的气韵将空间缓缓点亮色彩的纯度,造型的竖向拉伸,场景的不同切换。
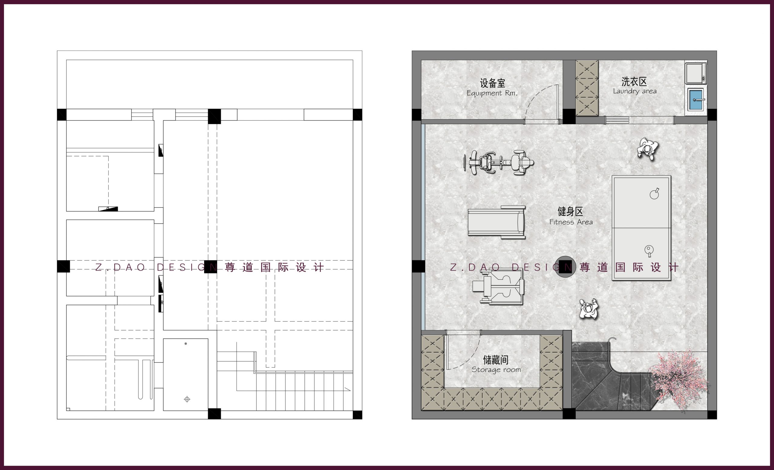
▲负一层原始户型图vs平面布局图缺点:空间被分割让人在视觉上感觉空间小,采光不足;
优点:区域划分明确,空间效果完整。
平面方案优化解析:
1、拆除部分墙体使空间变大,不拥挤;
2、洗衣房在天井下面,解决地下室采光问题;
3、柱子包圆让空间柔美。
动·健身区





地下室中间的柱子,我们做了包圆的处理,目的就是弱化他,表面增加抽缝,形成比例分割,地面加上一圈线灯,让其有自己的领域感。
健身区用水波纹不锈钢做吊顶,墙面利用镜面,形成一个整体的空间领域,线灯的加入也是为了让顶和墙形成连贯,自带调光和流水的灯光效果一定是健身区域必备感觉。









