行了一路,看过绿树林荫;
看过秋风渐红,在庭院中歇息片刻;
闲看雨落,听花语。
一起认识屋主
业主是一位十分时尚且精致的女士,希望这套居所别有意趣,理性又优雅。我们做任何设计,特别是复式别墅,很多方面都是要参考建筑本身的艺术结构,以及考虑业主的居住本质需求,我们善于读懂业主,也善于把握建筑艺术展现,所以在呈现方案的时候,就会有很多的惊喜和创意带给每位业主。
参观他们的家
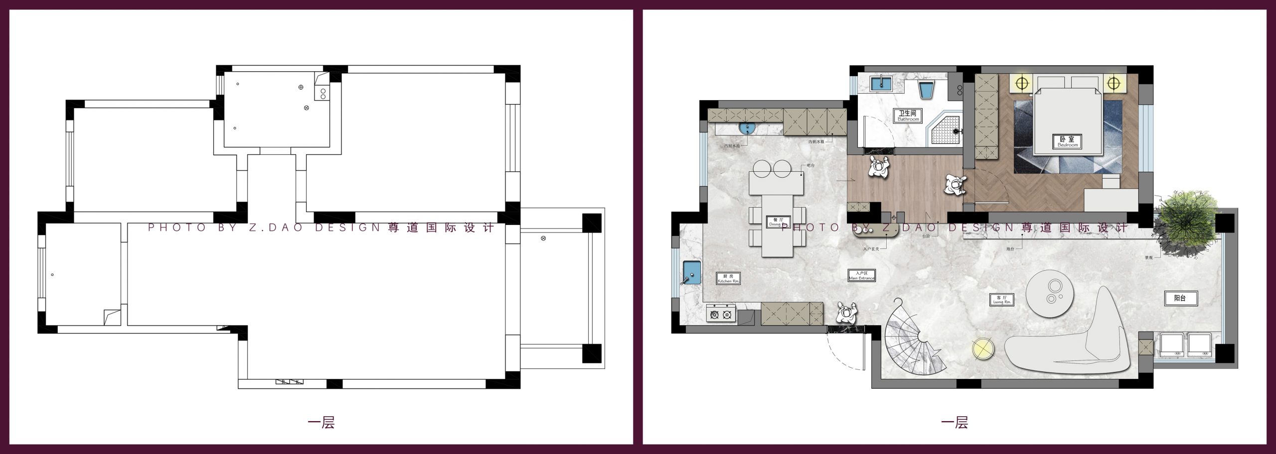
▲一层原始户型图vs平面布局图
总体:整体空间宽敞大方的基础,以现代艺术的空间设计与软装搭配,在简约自然的空间下,搭配别致优雅的家具与饰品,通过大胆时尚的配色与细节设计,为主人营造出一种个性舒适的生活空间。
优点:南北通透,采光通风都比较好,每个空间的采光面都比较大,视野极好,光线充足,顶楼带天窗。
缺点:入户就是楼梯,建筑总体室内规划不太合理,空间面积配比不够和谐,总体室内安排不够人性化。
首先,将入户大门方向调整,避免大门冲着楼梯位置,以及大门外朝向公共楼梯道。一层入户即是玄关,横向的不锈钢柜与竖向的艺术涂料装饰画拉伸整个空间的比例,墙面用了三等分的绿色艺术漆,和后面的西厨橱柜相互呼应,使整个空间有了连贯性。
客厅用了挑空,这样使空间彰显了整体入户的档次感,客厅是和楼梯的区域连在一起,延伸的楼梯和玄关背景形成一体设计。电视背景墙打破常规设计,改为圆弧形的壁炉,使客厅的整个空间设计感加强,空间的一个围合感就出来了,阳光透过挑空天窗,穿过客厅一直延伸至走廊,光线在地板上变换着,舞蹈着。柔和了空间,增添了温度,为“家”温柔了时光。灯用了珍珠吊灯给整个空间增加了艺术感、氛围感。客厅空间以艺术涂料结合大理石的稳重,弧形的设计柔化了硬朗的空间,现代感的艺术座椅延伸了窗外的自然景观;为静素的空间增添了一份活泼之感。
厨餐厅区域,餐厅在国内来说是一个非常重要的区域,因为民以食为天,餐厅就是家里的聚宝盆,这也就是我们为了餐厅更加大气和寓意更好的一个设计思路,西厨的中岛在厨房和餐厅之间,中岛也是一家人可以聊聊天吃吃水果的地方,他是厨房的延伸,是空间的一个延展,也是非常实用的设计,西厨柜子也做到了它最大化的利用,有展示,有储存。
厨房是一个开放式的厨房空间设计,这也是空间的延伸,光透过中厨的百叶窗,光影错落在餐桌之上,几片枯叶映带了几分惬意遐想。
一层有一个卫生间 ,我们用了墙面的叠及造型做了隐形门的设计。女儿房入户是个圆弧造型的书柜,并在床头两边也做了书柜,满足屋主的使用感,整屋采光十分充足,柔软的浅灰色床与舒适地毯相搭,这样一个私人空间让人感觉悠然自得,契合屋主的风格,随性,大方,简洁。
▲二层原始户型图vs平面布局图
二层需要一个套房和大的衣帽间,更改最大的其实的空间的使用,以及合理的运用了空间大的部分,将空间解放出来,做成了与卧室的交流空间,这也正是业主想要的。
二层的挑空,也是空间上的点缀。卫生间采用了全玻璃和穿插的设计使卧室的采光更加通透,书房运用了开放式的手法,虽然面积不大,但它功能使用率极大,尤其是桌边的书柜,用的圆形镂空使枯燥的书房变得饶有趣味。卧室平淡而不平凡,他不仅有色彩上的独特,在空间上也具有极强的独特设计,例如卧室里的异型窗户,非常抓人眼球。
把卫生间卧室书房三个区域连通的套房,不仅没有破坏套房的整体性、通透性、美观性,反而使整个套房更加明亮通透,也增添了套房的实用性和不同寻常的艺术感,扩大了整个空间功能的使用性。衣帽柜加上梳妆台也是完美的搭配。梳妆台的空间也是女主人最喜欢的地方,衣帽间延续了主卧室套房的色调,所以选择了深色的空间,深色的设计在品质上可能会高于浅色系,让人觉得更有品质和档次。
客厅
客厅使用纵轴设计,弧型沙发及组合茶几,搭配两侧单椅的围合手法,拉伸整个客厅的体量感,强化入户的第一感官,令其更显开阔。
个性化定制的沙发,侧边引入功能性柜体,以细节成就家居体验。电视背景墙打破常规设计,改为圆弧形的壁炉,使客厅的整个空间设计感加强,空间的一个围合感就出来了,软装上择取含蓄内敛的古铜、高贵典雅的石材、光泽细腻的皮革,配以无处不有的温润气息,以期呈现集品质、艺术、舒适为一体的精妙生活方式。让空间得到生机,也让外部与内部的空间有了交流。
客厅挑空的吊顶是一个珍珠吊灯。而且带有弧度,类似中式卷轴的感觉,寓意很好,餐厅区域顶面做了木饰面走顶,丰富了空间的层次感,也划分了区域性,这是一个极有视觉体现的空间。
餐厨
厨餐厅开放式布局+岛台设计。水磨石从地面延伸至厨房墙面容易溅水的地方,灰色防水乳胶墙漆与水磨石拼接。岛台设计用来摆放平时最常用的咖啡机等小家电,同时起到了隔断作用。不得不说,厨房岛台视野很好,方便与客厅里的家人交流。餐厅和开放式厨房相连,视觉上延伸空间显得更加宽阔。
通体灰色吊柜做满,把油烟机也一齐包上,给人一种干净整洁的印象。这一组柜体满足了强大的收纳功能,瓶瓶罐罐和厨具做隐藏式收纳,看上去整体感更强。
打通的餐厨客生活一体空间,动线流畅,大大提升了空间效率。路树的影子透过阳光洒落在白墙上,墙面成为了天然的画布,映照着四季。
树海交错着窗棱间洒落的光,静谧且开朗。层次分明的美学容器与自然环境和谐,白色的建筑与周边环境连成一体。建筑能够拥有非常开放的空间,并且同时具有限制空间感的双重性。建筑中的每一个元素都互相支撑、融合,彼此交叠,旨在通过开放建筑角落,尽可能地在最小建筑土方量的基础上,塑造出建筑特色。











