认识·屋主
以赤忱之心,热爱生活。

设计·改造
侘寂风 | 叠墅 | 都会1907

▲一层原始户型图vs平面布局图
1、门厅略显小气;
2、厨房不大;
3、楼梯位置不合适,影响客厅的采光。
区域划分明确,空间效果完整。
2、北边儿童房空间略小,用雪糕床既可以增加童趣,又能满足日常生活需求;
3、南边儿童房采光较好,用上下床增加趣味,满足儿童日常生活需求;
4、厨房做成开放式,分为中西厨,且与餐厅相结合,与客厅连接,形成客,餐,厨的超大客厅;
5、主卧阳台纳入室内,扩大主卧和主卫空间;
6、庭院入户的门厅扩大,拓宽客厅空间。
敞·客餐厨区域

圆弧吊顶和拱形的元素再加上法式特色的罗马柱充斥着整个入户玄关,犹如身在巴黎,仿佛在诉说着巴黎若不动人,世间再无浪漫。

开放格充分利用空间,采用纵横交错的设计,木色开放格在温柔的色调下,更显得温润宁静,岁月静好的模样。

左边部分作为开放式收纳,右边部分作为封闭式储物,不仅解决了收纳问题,让客厅不再凌乱,还可以摆放精美的摆件,与弧形元素设计相配更显得优雅美观。
• SU立面设计图

• 效果图

整体以奶油色米色基调为主调,旨在打造安宁、静谧的空间氛围。

奶油色米色的主色调搭配法式线条与木色调相结合,惊艳但不饱满,给予建筑本身一份天然的发挥空间,放大建筑本身的优势。

大气百搭的黑色用于空间辅助色,这个空间井然有序又不失层次感,大面积的白色在视觉上也会显得轻盈干净。

独特造型的吊顶自带高级气质,可以成为整个设计的点睛之笔。
整个空间有了这样充满艺术感造型的连接,增强人与人之间的情感互动性。
玻璃护栏让空间更为开阔灵动,又不显得呆板,更能增加楼梯到地下室的神秘感。
厨房做成开放式,分为中西厨。
• SU立面设计图

• 效果图

与餐厅相结合,既增加了厨房空间,也增加了餐厅的空间。
• SU立面设计图

• 效果图

餐厨空间与客厅连接,形成客餐厨一体的超大宽厅。
雅·门厅

庭院入户的门厅,柜子与雕塑的结合,扑面而来优雅的气质,采用拱形门洞的设计手法,满足储物的同时也充满了设计感,增强整体氛围。
柔·主卧
• SU立面设计图

• 效果图

将阳台纳入室内,增大主卧空间,整体以奶油色调为主。

护墙板搭配顺滑柔美的PU线条形成立体的美感,空间交织,协调出柔和的气氛。
丝绒质地和蕾丝样式的窗帘,透光不透人,氛围感满分。

窗帘拉起来有种朦胧的意境感,阳光透过白色窗帘,倾泻一室,温馨而有高级感。悬挂的半球形灯和嵌入式石膏灯,法式氛围感直接拉满。
趣·南侧儿童房

用隐藏门来增加神秘感,勾起小朋友的好奇心。

可睡觉可玩耍的上下床,具有舒适感与儿童趣味,整面墙的柜子满足小朋友的一切收纳需求。
• SU立面设计图

• 效果图

楼梯旁边墙上开拱形洞增添趣味,释放儿童爱玩的天性。
乐·北侧儿童房

用雪糕床来增加神秘感,勾起小朋友的好奇心。
• SU立面设计图
• 效果图

大面积的柜子满足小朋友的一切收纳需求。
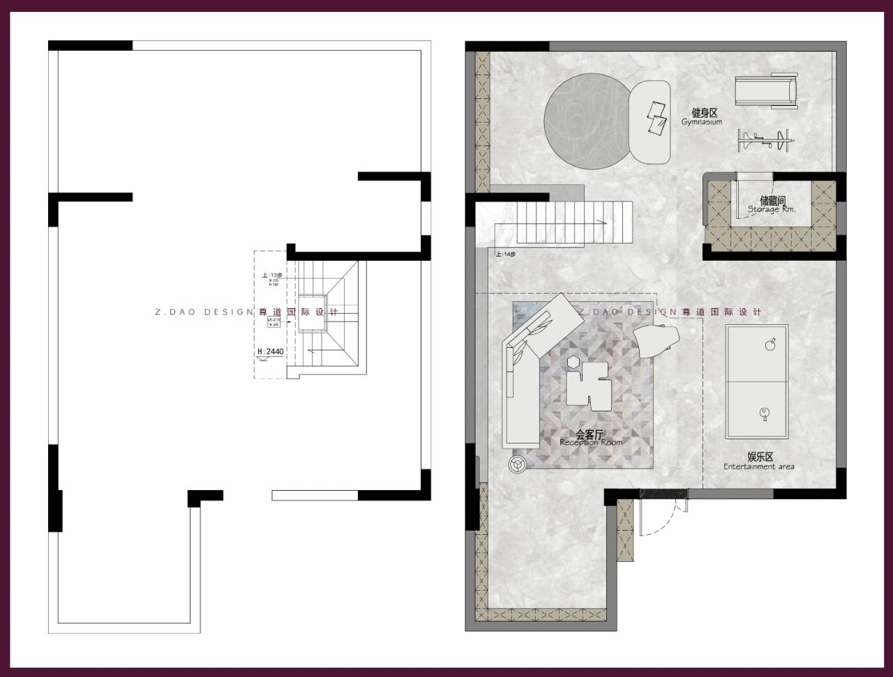
▲负一层原始户型图vs平面布局图

▲负二层原始户型图vs平面布局图
1、楼梯位置靠近房屋中间;
2、承重结构较多,空间设计受到限制。
超大面积采光井,地下室采光极好。
1、地下室利用层高增加了夹层空间,设置一个大储藏间,满足业主收纳需求;
2、在夹层区域增加一间卧室,供后期客人来访留宿;
3、中间超大挑空会客厅,宽敞大气。
阔·挑空会客厅

• SU立面设计图

• 效果图




加宽的承重墙通过巧妙地立面手法将其弱化。负一楼的卧室探出一点观景台,让人忍不住驻足欣赏这空间之美。以最简洁设计手法打造富有节奏的空间美感。

护栏的缺口设计充满神秘感,增加趣味性,大大的提高了空间的颜值。
• SU立面设计图

• 效果图

凹凸的平台设计加上弧形艺术玻璃护栏的造型柔美又富有空间感,搭配黑色铁艺护栏又不失精致。
天际线灯是顶面最大的亮点,完美的弱化了梁的存在。
• SU立面设计图

• 效果图

黑色又与整体色调成现出不一样的视觉效果,使整个空间更加完整。








