01
一起认识屋主
至简至美,极简侘寂。
和业主的缘分起源于她万科臻园的一套房子,凭借尊道专业的施工,细致的服务,亮眼的设计成功捕获了业主的心,此套设计,已经是第二次合作了。
业主是一位热爱生活的成功女士,买下此处靠近巢湖的房子,是作为休闲度假使用。闲暇时邀请三两好友一起来此休闲度假,放松心情!我们会继续秉持精细化服务客户的理念,做好每一套私人定制。
02
设计他们的家
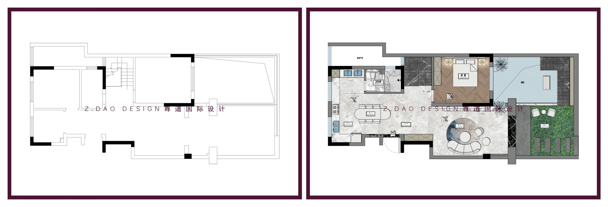
270㎡ | 地复式 | 凤起巢鸣
▲一层平面布局图
?原始户型分析
1、入户无鞋帽柜;
2、厨房空间太小,操作不便;
3、卫生间空间小,无干湿分区,使用不便;
4、客厅尺寸小,不够大气。
? 户型改造
1、入户右边借助墙体结构增加鞋帽柜;
2、厨房上方墙体拆除做开放式厨房,增加厨房操作空间;
3、卫生间空间往上推,将浴室柜拿到外面实现干湿分离;
4、拆除院子与室内连接的墙体,将入户区域划入客厅空间;
5、一层院子增加去往负一楼院子的楼梯,将不在同一平面的院子连接在一起。
▲负一层平面布局图
?原始户型分析
1、卧室空间小,勉强放下床、床头柜、衣柜,空间下拥挤;
2、公区采光差,比较昏暗。
? 户型改造
1、将部分楼层板拆除,把室外光线引进负二层;
2、将院子与室内连接的墙体拆除,把一部分院子划入室内空间作为卧室使用,扩大卧室空间;
3、因为卧室外移,公区空间增大,改为为茶室使用,增加了功能区。
▲负二层平面布局图
?原始户型分析
1、整个负二层没有采光,日常需要开灯在能使用;
2、有一半区域只有1.7米高,使用率很低。
? 户型改造
1、负二层光线不足将负一层部分楼板拆除引入光线;
2、其余光线不够充足部分做成影音室;
3、挑空区域作为游戏区供孩子、大人一起玩耍;
4、剩余层高较矮部分作为储藏间收纳不常用物品。
03
参观他们的家
极简侘寂 | 移景入室 | 重塑空间

原本只有5㎡的厨房,在拆除了多余墙体之后,做成开放式的厨房达到了10㎡,加大了厨房的操作台面,将所有的厨房电器尽数收纳。厨房与餐厅相结合,将空间连接起来使空间看起来大气更有互动性。左侧的高储物柜加上洗衣机柜完美的与橱柜相结合形成高低台面。
餐桌旁的墙面使用了艺术漆,让墙面也有了纹理让简单的墙面不再普通。在墙面上增加了一组异形的悬空柜,柜子侧面用了圆弧形,加上柜子选用了与墙面相近的颜色,让柜子与墙面结合的更加融洽。
卫生间的浴室柜放到外面做成干湿分离,搭配上今年流行的柠檬黄与大理石柱盆相结合,沉稳又不失活泼,墙面的艺术漆跳色为整个空间又增加了一丝趣味性。卫生间里面选择了水磨石加上防水石膏板,让空间行的更加清爽简洁。

阳台区域做了一组高柜,平板门搭配金属开放柜和石材饰面,让这组柜子满足储物的功能以外成为空间中的一丝点缀。旁边的玻璃推拉门将室外与室内的空间进行划分,但是又可以将入户庭院的景观收入室内。
▲效果图
沙发背景墙只是简单的用石膏板刷艺术漆上墙,做了抽缝将整个平面进行划分,虽然简单但是却恰到好处。沙发的选择并没有拘泥于普通,而是选择了一个半弧的造型配上一个单椅,光是看着就十分惬意。
▲效果图
入户处的鞋帽柜也是选择了长城板搭配金属开放柜的形式,不仅储物功能强大,也是虚实结合空间感更强。餐厅旁的墙面增加了一个造型壁灯,为这个平淡的墙面增加了一出“亮点”!
▲效果图
客厅区域的墙面也是大面积的艺术漆,让空间更加有层次。电视柜的颜色选择了简单的白色和绿色相搭配,左侧做成开放的形式可以摆放一些工艺品小摆件。右侧圆弧的造型将突出于墙面的承重柱体包裹住,不会太过突兀。旁边的窗户也跳脱出了平常的矩形而是换成了一个圆形,搭配上顶面的弧形造型和天际灯,使空间更加灵动。

一层的卧室也采用了无主灯的手法,简单的几组筒灯加上床头的吊灯,既满足了照明也不会造成光污染,让空间明亮有温度。
▲效果图
衣柜采用了深灰色烤漆柜子和玻璃柜门,加上深色的鱼骨拼木地板,使空间更加沉稳。背景墙简单的跳色和抽缝处理加上一些金属的元素成为整个空间的聚焦点。

负一层的开放式茶室正对挑空区域,三五好友来这喝喝茶、聊聊天看着孩子在休闲区或者负一层庭院玩耍,好不幸福呀。茶室的柜子由开放式金属柜和烤漆柜相结合,结合处由半弧形自然过渡。烤漆柜上下储物,中间镂空处放置了一个玻璃材质连绵山脉的摆件。
▲效果图
顶上的梁利用斜顶和圆弧型将其弱化。挑空区域的顶面打破了常规做法,做了一个特别的圆形内凹造型,搭配上一圈灯带,让在负二层玩耍的小伙伴们增添了一丝乐趣与温馨。

该卧室床尾是一个正对庭院的大面落地窗,采光十分充足,可以将户外的景色尽收眼底。3.7米的衣柜满足了业主日常的收纳,床头的背景墙由简单的护墙板和长城板以及线性灯组成,竖状的线条把整体的空间纵向拉伸。

负一楼的庭院加装了一个旋转楼梯连接了一层的庭院,增加了两个庭院的互动性,我们也可以从一楼的圆形窗户欣赏到庭院的景观。庭院的角落我们栽了一棵小树,为整个住在增添一抹绿色的生机。庭院的地面我们多采用的是地面硬化局部是草坪,让庭院更加休闲,实用性更强一些。庭院的侧面使用长城板加线灯,巧妙地把排污泵给隐藏起来。

原本采光不是很好的负二楼给改成了视听区,顶面的星空顶加上弧形沙发旁的落日灯和暗藏灯带,如此氛围还不赶紧邀请好友来一场酣畅淋漓的视觉盛宴吗?视听区深处的金属酒架和连接墙体做的吧台,在看电影的时候品上一杯红酒何不惬意。楼梯下的空间增加了一株绿植成为此处小小空间的亮眼之处。

连接负一和负二的悬浮木质楼梯与底层的大理石地台相互碰撞,别有一番风味。右侧的墙面是艺术漆调色,将负一楼和负二楼的墙面连接到了一起,右侧的石皮材质将户外的感官引入室内。在负一层的下方做了一个特别的弧形空间,打破了空间常规的布局,让空间更加趣味灵动。
04
幕后花絮
关于家的美好故事
▶现场勘测














