【国贸天成】
法式奶油风叠墅 360㎡

尊道作品 | 《朱颜》
项目地点 | 国贸天成
项目信息 | 360㎡叠墅
设计风格 | 法式奶油风

认识·屋主
与爱相关,皆是浪漫。

图片

本案业主是对时尚的年轻夫妻,有个活泼可爱的男宝宝,屋主表达出想要精致且浪漫的氛围,温馨与仪式感并存的舒适生活空间,并将地下空间采光最大化。

以浪漫为底色,用设计满足期盼,三餐四季,有果有花,愿你们一家三口未来在新居创造更多美好回忆,也愿我们都越来越好。

设计·改造
法式奶油 | 叠墅 | 国贸天成
图片
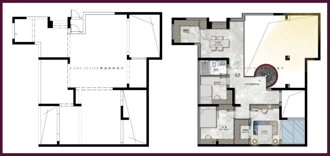
▲一层原始户型图vs平面布局图
原始户型解析:
1、户型方正,南北通透,采光充足;

2、原始宽厅格局;

3、承重结构多,空间阳角多;

4、原始空间没有设计楼梯位置;

5、除主卧套房以外,另外两个卧室面积都很小。

平面方案优化解析:
1、将客厅、采光井之间的非承重墙体拆除,将采光井纳入室内空间,做成玻璃栈道形式,既不影响采光,又扩大客厅面积;

2、将楼梯位置设计在整个户型的中心位置,连接上下空间,提高去往各个空间的行走效率;

3、将厨房左边的可外扩空间纳入室内,改造出洗衣间,也让整体厨房区域更加宽敞;

4、将厨房非承重墙体拆除,厨房空间更宽敞通透;

5、拆除小房间墙体纳入主卧区域,增加主卧的使用面积。

敞·客厅
• SU立面设计图
图片
• 效果图
图片

一楼入户进入就是一个整体的开敞空间。

图片

以浅奶白色打底,细腻的线条与弧型阵列的精美吊顶。以光的时间性为媒,让空间肌理美学趋于艺术的神性。

图片

图片

用玻璃砖隔断,可以让采光通透,又带仙气般的朦胧感。

• SU立面设计图
图片
• 效果图
图片
光影透过玻璃砖洒向地板,十分柔美与温馨,于细节处彰显主人的高品质。既能让家的功能更丰富,又不影响视觉上的美感。
图片
搭配法式线条的护墙板,美而高级,长虹玻璃门设计赋予了空间呼吸性。
• SU立面设计图

图片

• 效果图

图片
与温柔软糯的沙发共处一室,为室内赋予了更多的艺术氛围。
• SU立面设计图

图片

• 效果图
图片
当充沛的日光引入这里后,这处开放、流畅的格局间场景功能的规划随即变得灵活而极具可塑性 ——既是家人动线交汇处,同时兼具对外社交的功能,实为整个家庭空间的精神自留地。
图片
正红色的旋转式楼梯半隐半现跃然而下,让人想一探究竟……
巧·餐厅
图片
餐厅围绕吧台形成环游动线。
• SU立面设计图
图片
• 效果图
图片

宝格丽大花白岩板从地面流淌到吧台,让吧台功能完美的融入到整个空间,白色柜体的巧妙搭配,使空间更显品味和格调。

舒·主卧
图片

主卧空间背景使用浅奶白色打底,加入了宝格丽大花白岩板,与精美的护墙板相搭配,时尚大胆又浪漫。

• SU立面设计图
图片
• 效果图
图片

阳光倾洒进来,温馨与舒适感共存。

图片
图片

主卧的卫生间墙体运用虚实结合的设计手法,在墙体处嵌入白玻,使空间更具整体感,每一处都彰显着居住着优雅的生活情调。

图片

主卫地面和干区台面采用熊猫白大理石来提升空间的品味。

图片
• SU立面设计图
图片
• 效果图
图片

衣帽间设计简约大方、优雅,提升了空间的品质。

闲·庭院
图片
一楼庭院区域从地面材质上做划分,整体分为三个区域。
图片
走下台阶水池便映入眼帘,偶有微风,吹起水面阵阵涟漪。
图片

东边做了休闲区,可以在此烧烤,篝火或者夏天纳凉。

绿植与花卉相互映衬,生机盎然。

图片

▲负一层原始户型图vs平面布局图

原始户型解析:
1、整体地下空间面积和地面几乎一样;

2、整体挑空5.27米,可利用率很高;

3、一共有三个采光天井,采光优秀;

4、空间阳角过多。
平面方案优化解析:
1、在一楼定好的楼梯位置基础上,考虑到采光面积和挑空面积最大化,由一个长过道从西到东依次连接休闲区、保姆间和儿童房;

2、过道南边为整体挑空客厅空间,让朝南采光井光线充满空间。

趣·男孩房
图片

男孩房用简单的线条与岩板来搭配,绿色的床头背景墙与床品地毯,颜色活泼温暖,文艺又清新。

• SU立面设计图
图片
• 效果图
图片

柔和的阳光透过窗帘照射进来,让整个空间明亮又温馨。

惬·休闲区
图片

在负一层设置休闲区,便利生活的同时还可以放松心情,使地下空间的功能更加独立和完善。

岛台选用宝格丽大花白岩板,营造了休闲区与整体空间的连接感。

清·次卧

图片
整体以白色系墙面为主,温润的原木系书桌和柜子一起搭配,给空间注入清新柔和的感觉。
房间与采光井的结合,极大的增加了房间的采光度,使空间视野更加明亮。
净·负一层卫生间
图片
卫生间采用水磨石瓷砖,凭借低饱和度的色彩和富有质感的纹理让整个空间更舒适。
踏入这个空间,放下烦恼和一身疲惫,静静的享受此刻独处的宁静与温柔。
图片
▲负二层原始户型图vs平面布局图
原始户型解析:

1、整体挑空5.27米;

2、一共有三个采光天井;

3、空间阳角过多。
平面方案优化解析:

1.将挑空客厅设计在南边,连接朝南采光井区域,最大化利用了采光井的光线;

2.和负一层对应的负二层空间,从东到西布置了入户鞋帽间,卫生间和封闭式影音室;

3.儿童房下面空间做成开敞式儿童玩耍区。

乐·儿童玩耍区
• SU立面设计图
图片
• 效果图
图片
橄榄绿与奶白色的神仙搭配,仿佛走进了绿野仙踪的浪漫神话。
图片

挑选宝格丽大花白岩板做开放格的背景,打破了常规柜子的刻板印象,看起来更深邃和神秘,极具质感与设计感。

图片
天井下方,海洋球与旋转滑梯,打造专属孩子的私人乐园。
赏·影音室
图片

影音区除了满足基本的照明外,还通过设计隐藏式灯带,来营造家庭影音室的氛围感,既能达到浪漫的气息又能达到情境的需要,享受着诗意一般的慢生活。

幽·负二层卫生间
图片
护墙板与岩板的完美结合,使整个空间浪漫又梦幻。
• SU立面设计图
图片
• 效果图
图片
星耀岩板采用的蓝色多瑙河配色,双色纹理纵横交错,颗粒细腻,蓝色线条流淌,恍若置身河岸。
妍·挑空会客厅
图片
进入负二层便被映入眼帘的红色旋转楼梯所吸引,是空间中最亮眼的存在。
图片
宛如旋飞的红色丝带,极具灵动之美。
• SU立面设计图
图片
• 效果图

图片

红色点缀在空间中,与形态百变的Desede沙发相结合,不仅增添了设计的格调,也为细腻的空间融入了一抹开朗的色彩与温情。
• SU立面设计图
图片
• 效果图
图片
背景采用冷翡翠系列岩板,经典圆花曲奇纹和尊贵低调的黑色是它的特点,迷醉于低调奢华的浪漫。
图片
图片
壁炉造型的加入,与岩板的碰撞突出了大气恢弘的迎宾气度,使空间的色彩层次与艺术韵律相互映衬。
图片
水吧区选用外形独特的EDRAElla座椅,色彩从湖水般的绿色渐变至通透的蓝色,仿佛一朵精雕细琢永不凋谢的花朵。
图片
与左侧的金色边框储物柜共处时,阳光倾泻而下,光便有了形状,立刻成为空间的焦点。
• SU立面设计图
图片
• 效果图
图片
当光线折射和透视效果在空间中结成一个微妙的音律时,于此小酌几杯,共赴一场浪漫的相约。
图片
超高的挑空区域和大面积留白的墙面,整体造型处理成圆弧造型,竖向强化挑空视野感受。
图片
通过光线反射使空间不开灯也比较明亮通透。
图片
半嵌入式的石膏壁灯,光与影之间的神秘感,让你想要驻足探寻,甚至希望进入这一小小的一方微光空间。
图片
精美的法式线条,展现其特有的内涵和审美意蕴,凸显空间的细腻绵长与大气磅礴。

其他案例

Other cases