
仪·负二入户


右边的室内微景观能够提高人的审美情趣,且净化室内空气,节能环保,“一步一景”带来别具一格的艺术意境。
娱·负二水吧区

右侧的背景墙采用了两块隐形门格栅的设计,让空间形成一个整体,背景墙中间采用了金属钢板,拱形的造型加壁炉,给理性的空间增加一点刚性的质感。结合光影的互动,营造一个纯碎的休闲娱乐空间。
挑·负二挑空会客厅


左侧采光井地台大理石通铺到电视背景墙下,与潘多拉岩板背景墙搭配,呼应了整体风格,加上内嵌壁炉,更显层次,营造出温馨的生活氛围。


楼梯做折角设计,搭配黑色的钢化玻璃,加上楼梯底部的潮玩摆件,为整个空间增添生命力和活力。

缺点:阳角过多,负一楼实际实用面积小。
1、将局部的楼板层拆除,改成地下室挑空空间;
2、把下沉式庭院空间面积缩小,引入室内面积;
3、采光井区域现浇出地台,可以很好的和负二楼互动。
闲·负一茶室

1、扩宽庭院过道面积,利用庭院零碎空间现浇出家政间;
2、在一楼的东面开窗,增加采光,南北通透;
3、重新设计厨房与卫生间的位置。
悦·一层客餐厅

PU石材的凹凸层次感强,与大面积的岩板融合,在灯光的点缀下,令整个背景墙非常有镜头感,光滑的岩板那与粗旷的石皮肌理色调产生对比。


左侧采光井做玻璃扶手,让房屋更加通透明亮。
在休闲区的设计上以简洁为中心,但却不单调,空间采用了多种灯带,柔和的光线让灰与咖色形成空间视觉上的巧妙过度。

进家的大门采用了吊轨电动移门,既有防盗系数,又增加了采光。整个空间用了大量的木饰面与金属,沉稳有质感,木色的温润让家也变的更有温度。

灯光的运用在岛台的实用性上增加了些浪漫色彩,顶部和底部的灯带使得岛台的悬浮感更强。

缺点:空间零碎,不规则;公共区域过小;
优点:承重墙体少,可素造型强;南北通透,采光好。
恬·二层主卧

低饱和度的米色纹软包,质感柔软舒适,一定程度上起到柔化空间的作用,还具有良好的吸音效果,营造出温馨静谧的卧室氛围。
• SU渲染图

背景墙两侧木格栅设计可以很好的与卧室背景像融合,强化了整体材质的细节质感,让空间更具层次和艺术感。现浇出露台增加了实用性。
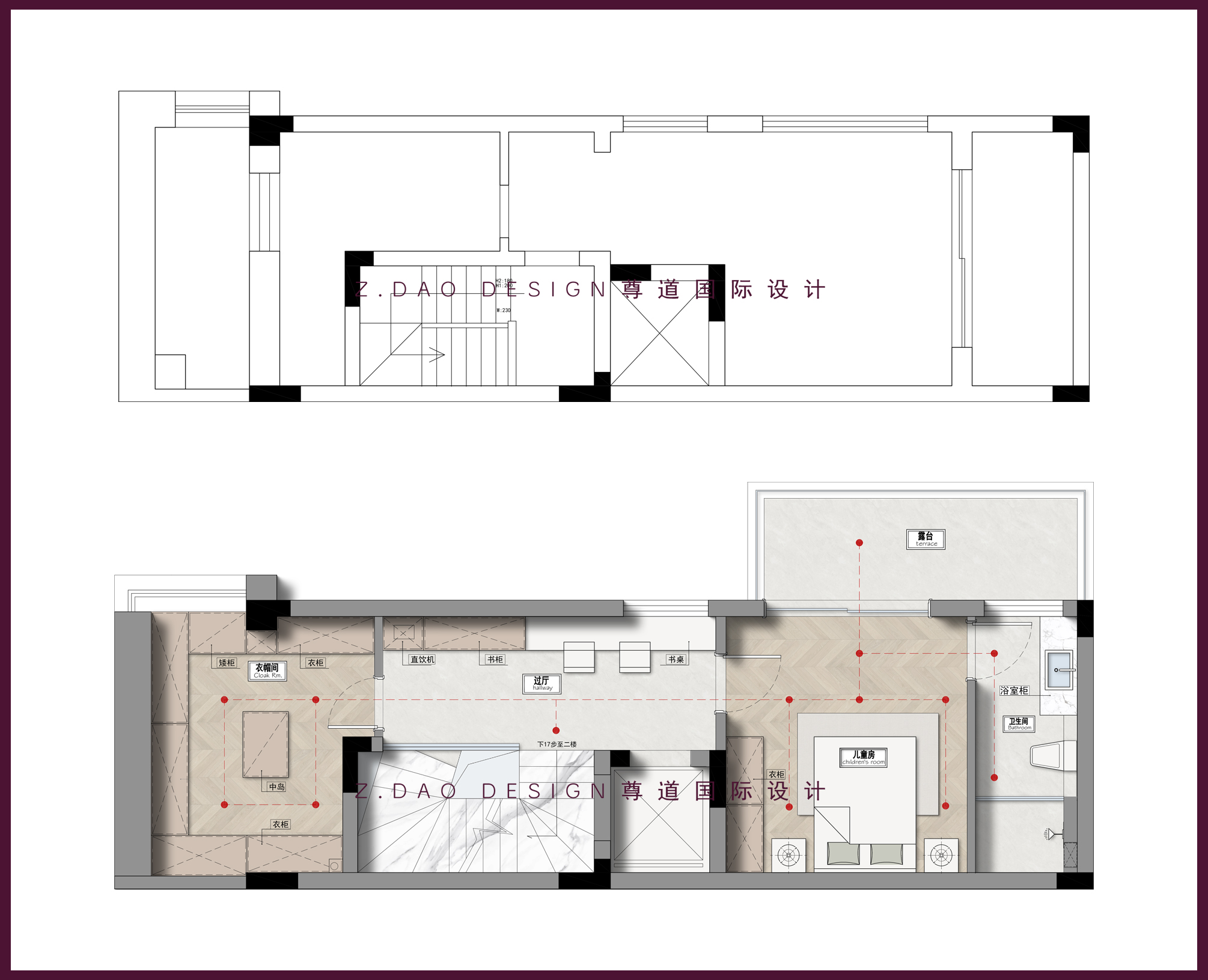
润·二层次卧
以胡桃木色调为空间基调,结合现代的简明金属线条勾勒,简单的线条勾勒出高级感,加上极简温馨的床头背景光影氛围灯,添加生活的仪式感。
优点:可改造性强。
平面方案优化解析:
1、现浇出卧室露台,以及卫生间和衣帽间的顶面,增加使用面积;
2、合理规划过道,衣帽间,以及卧室。
恬·三层卧室
浅色半墙岩板+深色木饰面做撞色,预留出的缝隙让极简几何之美充分凸显,嵌入金属缝隙中的小块墨绿色大理石则让空间质感提升的点金之笔。
悬空衣柜延申出床头柜美观又实用,色系与材料的搭配使整体非常统一协调。


















