行走在时间里的人,不妨停下来,觅一方静谧,穿过纷繁的当下,与山水和自然对话,在东方雅韵中品味生活的意境。
认识·屋主
三代同堂,悠然雅致。
本案要感谢老客户朋友的极力推荐,也感谢新客户朋友的耐心期盼。
于大多数别墅业主来说,一家人的“各有所居”尤为重要。本案的业主为更好的照顾家人回到合肥,希望设计师能够将一家三代人的生活进行妥帖合理的规划。基于业主偏爱中式的空间氛围,又比较担心传统的东方韵味会太沉闷厚重,所以我们决定以现代手法,融合中式基调,为空间注入一些时尚感,达到流行与传统的平衡。在细节上,大到每个人的生活场景,小到几双鞋、几件衣,尊道的设计完美契合业主对家的构想,妥帖的生活规划加上个性化空间,三代同堂,家人陪伴可抵岁月漫长。
设计·改造
现代中式风 | 别墅 | 龙湖丽丰·西宸原著
▲负一层原始户型图vs平面布局图
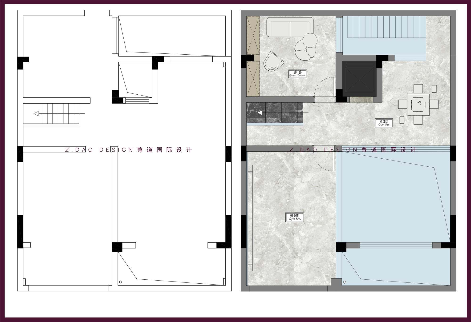
▲负二层原始户型图vs平面布局图
原始户型分析:
问题:通风采光都不是很好。
优点:承重墙体较少,层高较高。
方案改动说明:
1、将原始地下空间现浇成上下两层,局部保留了挑空空间;
2、将楼梯改建至北边天井处,把原私家车库空间纳入室内使用。
悠·休闲区
负二楼整个休闲区域注重精神场所的营造,删繁就简,以简约写意的手法呈现出作品沉稳,静谧,高雅的格调。


无论身居高位还是运筹帷幄,能够相谈甚欢的必须是志趣相投者,酒吧区设置大理石吧台满足主人会友、宴请宾客的需求。此时,三杯两盏,围炉夜话,生活的逍遥与闲适交汇于此。
阔·挑空区
挑空区靠健身房的这面墙活字印刷的“错落有致”·“阵列交错”融入设计的墙体中既磅礴大气又婉约精致。
负一棋牌区L型转角内嵌水墨壁画,现代与中式的碰撞,演绎着艺术的传承,也维系着不同材质和装饰物在空间中营造而出的意境,或是惬意舒适,或是温润柔和。
▲一层原始户型图vs平面布局图
原始户型分析:
问题:
1、一楼原始厨房较小,不能满足业主对中西厨的要求;
2、一楼原始空间零碎,客餐厅布局不合。
优点:
一楼户型方正,采光好。
方案改动说明:
1、将南边门厅墙体全部打开,形成一个大空间,做客餐厅使用;
2、将厨房朝餐厅方向扩大,增加中厨台面使用面积。
意·客厅
客厅整体的构思,是以原木+米白来奠定主基调,软装辅助深色的黑胡桃提升质感,通过配色及材质上深+浅、轻+重的比例调配,使空间层次似写意画的笔触一般,在”宣纸”上晕染开来。电视背景墙做了大面积储物柜,右侧的开放储物格,起到装饰效果,避免大面积柜体显的呆板。
客厅的线条灯从立面转折到顶面,强化区域空间感,能起到视觉延伸的作用,流动感也会变强,从而起到放大空间的效果。
氤·餐厨
餐厅圆桌设计,搭配有靠背的现代感椅子,整体色调是温润的米白色,较显柔和。桌子采用明亮的大理石材质,更显示出大气。
餐边柜采取整墙规划设计,为了赋予其他功能,以及让空间看起来有层次变化,将餐边柜局部采用两段式设计,刚好能将这个台面当做西厨餐台使用,分担中厨的压力。增加蒸烤箱设计兼做电器柜使用,顺道增加餐边柜的轻食烹调功能,柜体内还设计了嵌入式冰箱,完美的和餐边柜融为一体,视觉效果更整洁,柜体空间利用率更高。
餐厅和厨房用玻璃和木格栅分割,在不同时间段,投射出的光影,可以静静感受沉静的韵味。
敞·客餐厅
南边入户门正对楼梯间侧墙,作为南入户后的第一视角焦点,设计之初我们就在想,怎样才能让正对门的这面墙显得眼前一亮,同时还能解决楼梯内的采光问题呢?
脑海中想到了白居易的“一道残阳铺水中,半江瑟瑟半江红“,从而有了这面用水纹玻璃砖和木制柜体结合的造型墙,设计美感和实用性就都有了。
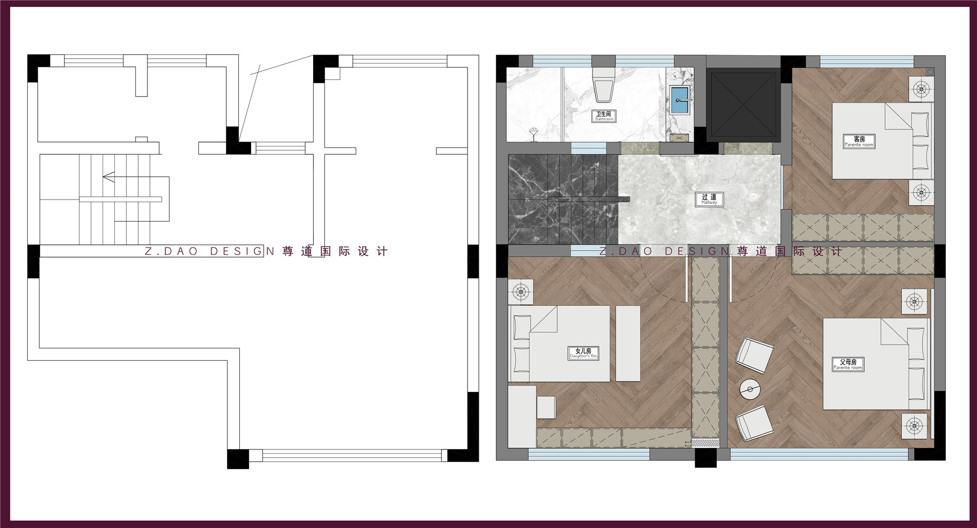
▲二层原始户型图vs平面布局图
原始户型分析:
问题:原空间布局不合理,卧室空间少,满足不了三代人居住。
优点:有露台空间可使用,户型可变动性高。
方案改动说明:
1、将原卫生间墙体向南边卧室扩大,改为客房使用;
2、将露天空间纳入室内使用,将原卧室空间一分为二做为两个独立卧室空间使用;
3、把卫生间独立出来,设计在电梯旁边,作公共卫生间使用。
馨·女儿房
女儿房不同层次的粉红不显甜腻,床幔温馨又浪漫打造成了公主的城堡。
靠窗边做了飘窗柜,不占空间,又可用来收纳玩具、绘本等。将床头书桌巧妙的结合飘窗柜设计,书桌上方设计拱形小书柜,可爱有趣。
雅·老人房
低调素净的低饱和色调更适合长辈房,房间整体配色选用米灰色搭配胡桃木色晕染出一种雅致低调的氛围。深釉红靠枕点缀的米色床品及玻璃饰品温润了整个空间,丰富了空间的文化底蕴。
原木半墙,搭配水墨硬包,内嵌灯带。加上棉麻床头、木制床头柜,读书看报超轻松~
整面墙的衣柜收纳很强大,中间设置了一组玻璃柜,就也不会过于压抑沉闷。
舒·客房
客房,顾名思义,客人暂住几日的房间,大方简洁的设计能让客人住的舒心又舒服~
整体的色调以温和的灰色和木色搭配,加之灯带恰到好处的嵌入,让整个房间的氛围是特别柔和舒心的。
▲三层原始户型图vs平面布局图
原始户型分析:
问题:
1、卫生间较小,不能满足业主卫生间四分离要求;
2、卧室没有独立衣帽间,不能满足主卧套房设计。
优点:
有露台空间可使用,户型可变动性高。
方案改动说明:
1、将原卫生间面积扩大,卫生间做四分离,独立衣帽间;
2、将南边露台纳入室内做卧室空间使用,床尾做设计开放型书房。
蕴·主卧
主卧室的质感源自于pu石材与光与木的完美融合,定制出符合心意的高级感~
床头背景墙是亮点,石材超强的肌理感,丰富了空间层次让视觉效果更加饱满,搭配隐形灯带,氛围感十足。定制了较矮的地台柜,一深一浅对比鲜明。
静·书房
卧室书房一体式,木色层板+黑色隔板,打造镂空的书柜,学习休息两不误,超实用~
极简吊顶,无主灯设计,落地窗,投影幕布,打造舒适的办公、睡眠环境~
拥有一间属于自己的大套房,在书柜摆上自己喜欢的物件和珍惜的收藏,放一把舒适的座椅,可以安静的待上一整天……有谁不喜欢看完书、办完工、甚至打完游戏倒头就睡呢。
▲四层原始户型图vs平面布局图
原始户型分析:
问题:过道狭长,空间利用率低,存在面积浪费。
优点:有大露台,可观景。
方案改动说明:
1、将电梯设计升到四楼,解决了上顶楼需爬楼梯的困扰;
2、将北边空间纳入室内,设计成大的洗衣房,解决了洗衣晾晒问题。
北侧空间纳入室内,设计成一个大的洗衣房,露台空间既可以休闲赏景,又可以晾晒衣物,是一个舒适、实用又美观的空间。









































