

原始户型解析:
问题:承重柱较多;
优点:承重墙体少,层高高,通风采光较强。
平面方案优化解析:
1、在南边下挖采光井,将室外光线引入室内;


步入室内,顶面采用了木饰面与灯膜的结合,塑造空间结构感,使空间之间的过度变得更有层次。灯膜从顶面转折到墙面,使空间更加立体,延伸视觉的同时,流动感也会变强,从而起到放大空间的效果。
简练的线条勾勒出空间的秩序,每一个转角处都在材质的碰撞中感受柔软与硬朗的并存。
惬·休闲区



• 效果图
木饰面的温润营造,自然舒适,温馨恬静的氛围,大理石的刚硬更体现业主对生活的态度与向往繁与简的对比。


钢琴区的位置巧妙地占据公共空间的一角,连接了入户、影音室、会客厅三个公共区域。
当我们处于这个空间不管在哪个区域都能看到钢琴的存在,它既能作为乐器演奏出美妙的音乐,也能成为整个房子的装饰,给生活赋予高雅的品味。
品·茶室



茶室右边设计挑空景观,从端景角度看来,温润的木质和绿植景观自成一景的同时和茶室的氛围互相交流。
观·影音室



整个空间的硬装回归质朴,选用大理石、镜面不锈钢等几种材料,使空间更具未来感和科技感。

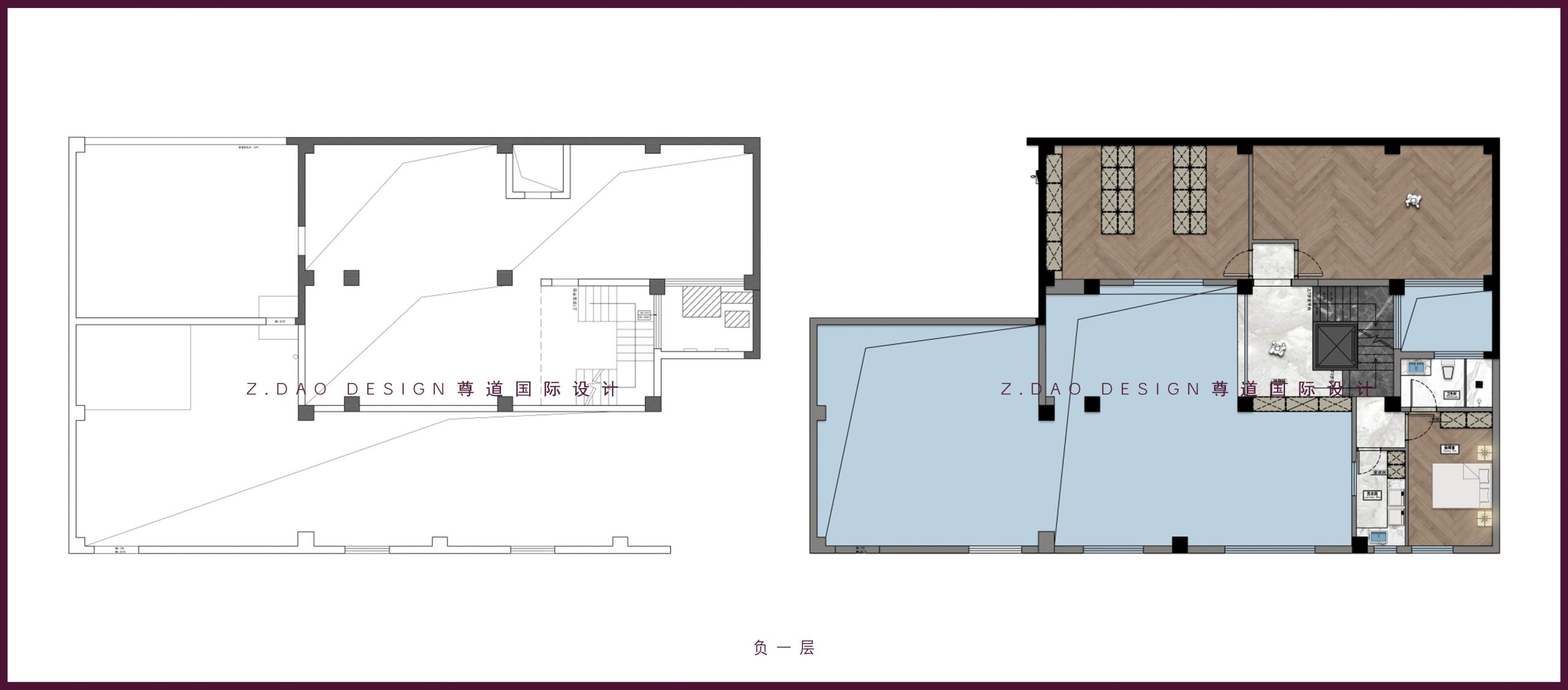
原始户型解析:
问题:承重柱较多;
优点:挑空多,可改造空间大。
平面方案优化解析:
1、将原始地下空间现浇成上下两层,局部保留了挑空空间;
2、保姆房带有独立卫生间,有隐私性 。
负一·保姆间

将卧室部分还原最基本的功能,把睡眠变成一件极为单纯的事情,整体色调低饱和度,以营造一个宁静和放松的氛围。

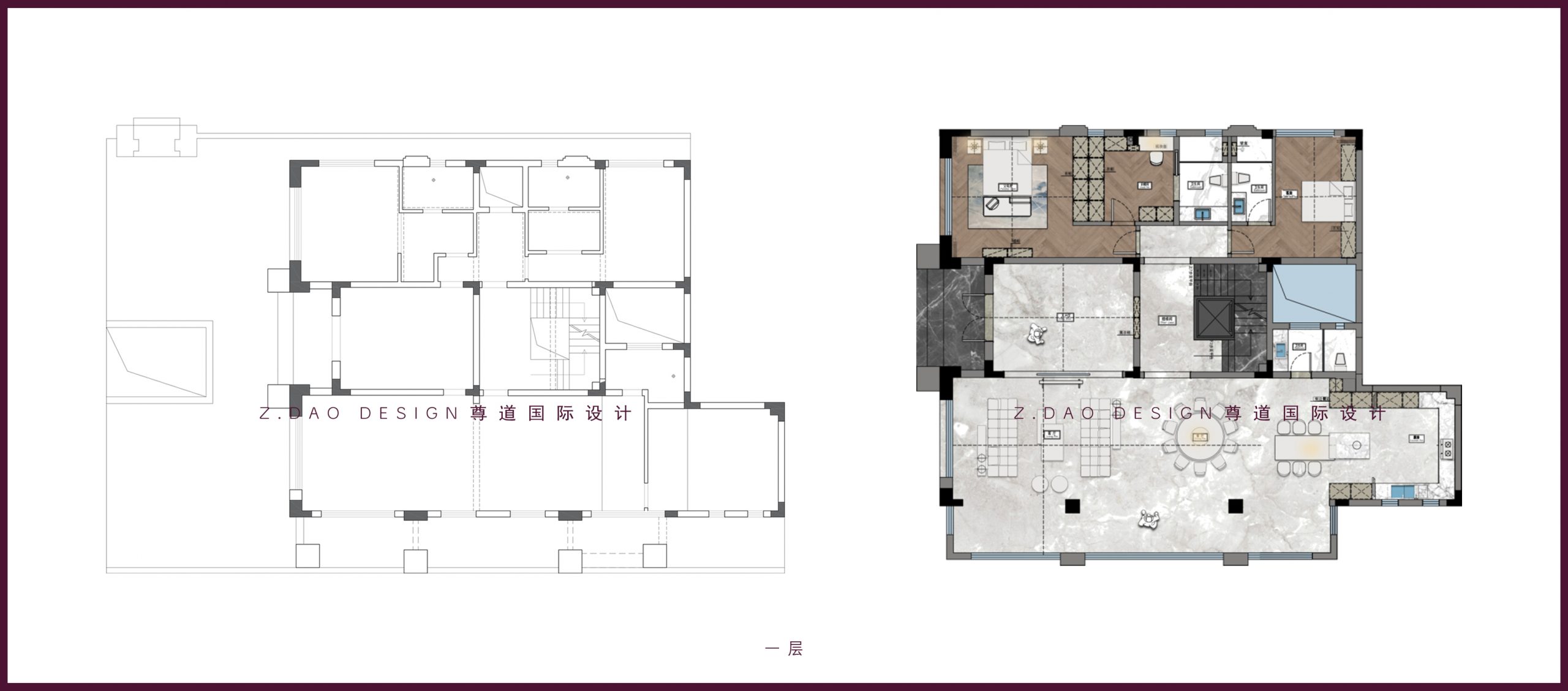
原始户型解析:
问题:
2、一楼原始空间零碎,客餐厅布局不合。
优点:一楼户型方正,采光好。
平面方案优化解析:
1、将东边门厅墙体全部打开,形成一个大空间,做客餐厅使用;


入户左面墙上使用大理石连纹山,高山,有着挺拔俊秀之势,高远谈阔,悠然闲适,沉醉其中。与两侧护墙板结合两边对称,互相呼应,从而产生庄重之感。
明·客餐厅



• 效果图

餐厅背景两边使用规则敞开格,不仅可以收纳,而且也是一种装饰,其中中式风景画作的意境也被运用在室内空间中。
雅·父母房

卧室整体风格延续了整个空间的色调,轻轻浅浅的引人入胜。丢掉了繁琐的装饰,强调了卧室简雅舒适。
床头背景与衣柜采用统一色调,拉伸空间感,保证了室内简洁舒适,也将从容优雅的气质渗入细节。
舒·客房


客房的传统与时尚相互并存的新中式卧室设计,使整个居室在浓浓古韵中渗透几许现代气息,依据传统水墨元素的床头背景,两侧设计出衣柜,让卧室看起来美观的同时更具实用性。

原始户型解析:
问题:空间零碎,行动动线不便;
优点:承重墙体少,可改造性多,层高高。


房间整体使用不同材质丰富细节没有花哨的色彩和图形,用简单的线条装饰出平淡中的安稳。
• SU立面设计图

中间设计玻璃岛台用做放首饰、手表等,衣帽间从收纳到展示,再到梳妆台的设计,造型利落,把控着细腻的空间视觉,带来舒适惬意的放松时刻。


二楼父母房配色选用米灰色搭配胡桃木色晕染出一种雅致低调的氛围。

童·小孩房
• SU立面设计图
小孩房整体采用浅色调,床头背景采用翻页设计让整个空间不那么单调,床尾使用格栅做衣柜门,空调风口则是藏在衣柜门上方,房间干净的同时而富有格调。




















