【中国院子】
现代中式风别墅 500㎡

项目案名  |  《归院》
项目信息  |  500㎡别墅
设计风格  |  现代中式风
项目设计  |  尊道国际设计

“中也者,天下之大本也;和也者,天下之达道也。致中和,天地位焉,万物育焉。”
本案设计手法上传承中式的温润如玉,舍弃妍姿幽态,本着中和自然、方正对称的设计原则和定律,以现代奢致与优雅的姿态,演绎造物里的中式对称之美,有物有序,看山似山,看水似水,以“空”摄“实”,一派圆融。
运用材料:木饰面、岩板、艺术漆、大理石。
认识·屋主
晨有清逸,暮有余闲。
图片
本案的设计,围绕“归院”打造,契合男主人想给家人一个归之安逸之所的愿景。常住人口是业主夫妻俩和两个稚童,父母也会常过来享儿孙绕膝之乐,整体风格打造现代中式,地下空间以“闲”为主,地上空间以“居”为主,设计过程犹如精打细磨私人稿本,在日常里,在动静中,在感悟后,书写俗常与意味人生。
设计·改造
现代中式 | 别墅 | 万振中国院子
图片
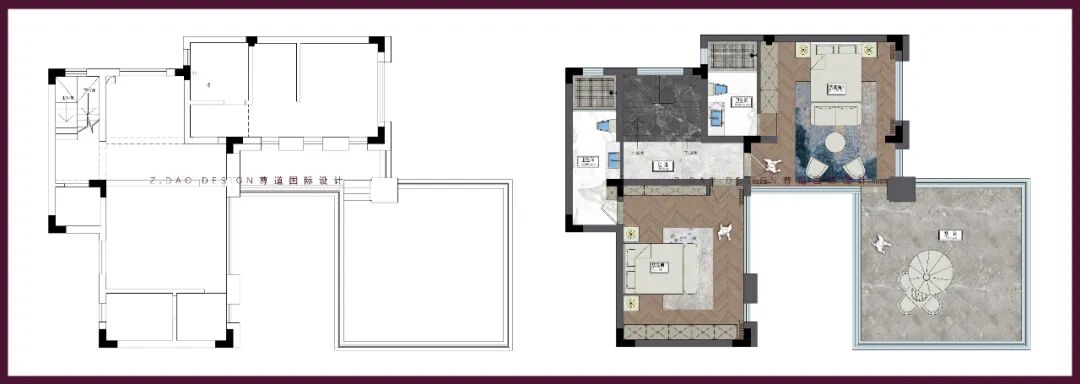
▲负一层原始户型图vs平面布局图
原始户型解析:
1、此户型方正规整;
2、层高5.2米空间;
3、单层空间利用率较低;
4、楼梯过于狭长且无采光。
平面方案优化解析:
1、新建墙体规划区域,划出娱乐区;
2、电梯位置墙体打掉给至采光天井,空间扩大;
3、楼梯位置改变到天井旁边,增加地下室采光和通风。
悠·挑空会客厅

图片

由车库步入会客厅,完美诠释了进门入景的意境。
图片

图片

• SU立面设计图

图片

• 效果图

图片

采光天井下,置石、植木,阳光从上渗漏而下,遗留在表面参差的石头间隙里,这派的恬静、幽深与闲适,演奏着一曲山间野趣的梵声。

图片

对面背景墙山水画平添了几分水墨写意。

• SU立面设计图

图片

• 效果图

图片

藉由空间笔触,寥寥数笔,远山丘壑,近处人居,动静与意境相生、契合。

图片

空间中一抹朱红在似是而非的迷离中定格传统风格在历史长河里浓墨重彩的一瞬。
图片

图片

巨大的挑空背景墙幕贯穿着负一、夹层两个空间。
• SU立面设计图

图片

• 效果图

图片

看山似山,看水似水,以“空”摄“实”,山水之间,绿意盎然。
 
律·健身区
 

图片

• SU立面设计图

图片

• 效果图

图片

健身区兼具健身与过道功能,空间功能性更加合理,深花纹大理石地砖,展示柜灯光,整体氛围更为奢华。

图片

楼梯采用白色大理石铺贴,楼梯扶手则用玻璃与金属材质打造,每级踏步还用灯带渲染氛围,形成视觉效果。
图片
▲夹层原始户型图vs平面布局图
原始户型解析:
层高5.2米,需解决空间利用率问题。
平面方案优化解析:
1、整体现浇楼板隔层,保留部分挑空空间;

2、现浇空间为墙体砌筑新建客卧、卫生间、洗衣区;

3、车库上方浇筑出书房等布局空间。

清·书房
 

图片

开放又不嘈杂的环境让书房多了份静谧之意。
 
• SU立面设计图

图片

• 效果图

图片

空间将时间与人文线索串联,用自然静谧包裹雅正空间,再利用光影刻度将时间凝固保存,让它们与空间中的艺术品一起回溯自然、出入古今。
图片
开放的书柜与背景墙的结合加上灯带的效果使整个空间少了些许沉闷。

• SU立面设计图

图片

• 效果图

图片

人在其中,可以俯瞰整个挑空的景观,如浸历史的诗,如触当代的云,如沐湖面的风,让当代的文人雅士感知与先贤俊秀谈笑风生天地清。

图片

青山隐隐,乘云欲归
或近,或远,或隐,或显
……
静·客卧
 

图片

挂画抽象派的风格丰富了空间的风格,射灯打在挂画上使之更加突出。
• SU立面设计图

图片

• 效果图

图片

射灯与吊灯的结合让空间多了份安静和神秘,又显的格外轻松。
图片
▲一层原始户型图vs平面布局图
原始户型解析:
1、墙体太多,空间被分割零碎;

2、可融合空间较多,拆除墙体做空间的融合。

平面方案优化解析:
1、拆除了院子墙体做落地窗户,视野空间扩大,采光更好;

2、西边墙体拆除做开放式厨房,增加了西厨区,扩大餐厅空间;

3、电梯区域做景观区,增加视觉效果;

4、南边院子做了楼梯可直接上到露台,室外分离增加业主居住。

归·入户

图片

门厅以精致的面貌传达强烈的归属感。
• SU立面设计图

图片

• 效果图

图片

入户便是由绿植、假山、大理石做的玄关景,圆形的水墨画与灯带结合既显突出又身临其境,中式元素浓烈,彰显恢弘大气。

韵·客厅

图片

顶面采用弧形的吊顶,中间大理石水墨背景墙让中式气息更加浓烈,壁炉与中式相结合有种温暖惬意的情景。

图片

• SU立面设计图

图片

• 效果图

图片

两面落地窗户的设计让采光达到最大化,通过风景开阖、空间对比,引导对空间的感知、强化空间尺度对比和尊重自然的精神,营造“未山先麓 、移步易景”的空间意境。

图片

透过客厅的窗户往采光天井下的景观区看去,做到了窗中之景,内部空间逻辑强化了建筑表达,外部景观世界欣喜地发现自身得到了呼应,艺术不再局限于空间的围合,动态的观念取代了静态的观念。
馥·餐厅
 

图片

借鉴了中式古典园林中的“借景”,将景观引入室内。

图片

辅以高山流水水墨背景,晴时阳光自天井泻入堂内,如同“洒金”;雨时雨水顺着玻璃窗落下,恍若“流银”,致中和,天地位焉,万物育焉。

图片

餐厅整体配色采用深色格调,水墨花纹地砖与墙面的瓷砖互相呼应。

• SU立面设计图

图片

• 效果图

图片

顶面圆形的吊顶与灯带的设计让空间更加的明亮,有着团圆的寓意;透明的玻璃柜门让空间有了开放性,有物有序,一派圆融。

逸·父母房

图片

窗外草木扶疏,山石花鸟,姿态静美的树木仿佛洋溢着生命力的绿色雕塑,屏蔽掉尘世的喧嚣。

• SU立面设计图
图片
• 效果图

图片

床头背景墙面采用硬包定制造型,背景墙的造型与灯带的结合增加了整个空间的层次感,木与白的色调,教人如入自然谧境,不自觉静下来。

图片
▲二层原始户型图vs平面布局图
原始户型解析:
1、采光充足,空间松散;

2、布局不合理,不能满足高质量的生活需求。

平面方案优化解析:
1、满足需求的前提下合理分割空间;

2、南侧房间内部墙体拆除,扩大卧室空间;

3、北侧房间内墙体拆除做衣柜满足衣物收纳。

素·卧室一
 

图片

二层的卧室舍去了厚重的装饰,整个室内追寻的是“天、地、人”和谐统一的自然观与哲思。给人自然平衡的简约感,传达了人居生活的最佳状态。让小朋友在成长的空间中释放情感,构造简单自由的快乐,展现自由的灵性和童心的欢畅。

图片

• SU立面设计图

图片

• 效果图

图片

弧形的背景墙造型有着不同于以往的做法,三面灯带的设计让弧形造型在空间中更加立体与突显;整体素雅低调又不失特别。

雅·卧室二

图片

相较于另一个卧室,本屋在灯光的采用上更多的增加了一些暖色的色调。

图片

• SU立面设计图
图片
• 效果图

图片

弧形的背景墙有着相之呼应的妙取同工之处;对称的柜子中玻璃柜门的设计让整体不在单调,既达到了展示的效果又是空间的点睛之笔 。小小的境地,通过自由而质朴的表达形式,诠释了“静、雅、美、真、和”的情绪体验。

图片
▲三层原始户型图vs平面布局图
原始户型解析:
1、户型方正,采光充足;

2、空间过于零散。

平面方案优化解析:
1、拆除北侧房间中间的墙体,打通整层做成一个超大的主卧室套房;

2、露台部分空间纳入卧室,扩大卫生间区域做台盆、马桶,干湿分离,同时满足女主大浴缸的需求。

锦·主卧
图片
传统中式的屋顶造型为装饰,同时三角形的吊顶解决了梁体的问题,以现代化的方式透过新的演绎传达出现代空间设计和生活相融。新与旧,古典与当代的转换碰撞中,再次传达着来自东方的礼序。

图片

• SU立面设计图

图片

• 效果图

图片

两面窗户设计让采光做到最大化整个空间宽敞又明亮;背景墙加上墙面抽缝点缀,显得增加墙面的立体感,加入竖向的灯带,氛围感拉满。在保证空间的书香气的同时也提高了空间的归属感。

润·主卫

图片

• SU立面设计图

图片

• 效果图

图片

干湿分离式主卫空间,大理石与金属的碰撞带来仪式感与格调。做到美观的同时具备使用功能,双台盆设计满足了业主的需求;长虹玻璃与卧室连接,透光不透景。

其他案例

Other cases